Угловые одноэтажные дома Г-образной формы
Угловой одноэтажный дом создан для углового участка. Но не обязательно искать для этого угловой участок. Дом г образной формы отлично будет смотреться в угловой зоне любого участка. Посмотрим на особенности углового одноэтажного дома
Плюсы и минусы
К плюсам одноэтажных домов, расположенных углом можно отнести:
- интересную архитектуру. Угловые одноэтажные дома отличаются оригинальным внешним видом. Их асимметричный дизайн придает зданию индивидуальность и делает его запоминающимся;
- уютный двор, закрытый от улицы и защищенный от ветра;
- четкое разделение на зоны: дети — в одном крыле, общая — в угловой части, родители — в другом крыле с отдельным входом или приватная зона в одном крыле, а общественная — в другом. Удобно организовать планировку для проживания нескольких поколений;
- несколько входов — парадный, с террасы, из гаража или с парковки;
- компактное расположение всех необходимых помещений;
- большая площадь — поместится все;
- нет межэтажной лестницы — безопасность для малышей и пожилых членов семьи.
Минусами одноэтажных г образных домов являются:
- площадь дома при г планировке не может быть маленькой — не будет смотреться, потеряется главная архитектурная фишка;
- большие тепловые потери из-за большой площади наружных стен;
- удорожание строительства по сравнению с прямоугольными в плане домами по той же причине — больший общий периметр стен, что увеличивает затраты на отделку и эксплуатацию.
Планировка

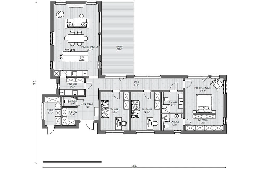
Планировка проекта КЛИМТ ДОМ ТЕХНОНИКОЛЬ
Особенности планировки Г-образного загородного дома заключаются в следующем:
- компактное расположение всех зон — все рядом: жилая, общественная, хозяйственная зона, гараж или навес для автомобиля, терраса, входная группа;
- дом размещают так, чтобы наружный угол смотрел на северо-восток, север, северо-запад, а внутренний угол смотрел на юго-восток, юг, юго-запад. Это обеспечивает комфортный микроклимат во внутреннем дворе и защиту от холодных ветров;
- крылья дома могут быть одинаковыми, симметричными, но можно сделать их разными. Например, в общественном крыле можно сделать потолок выше, чем в спальном. Одно крыло может быть в плане вытянутым прямоугольником, а другое квадратом и так далее;
- возможны различные варианты обустройства входа, например, с внутреннего угла, с наружного, с открытой террасы, из гаража или с крытой парковки. Удобно, когда входов несколько. Классно, когда из мастер-спальни тоже можно выйти на улицу — таким образом мастер-спальня становится домом в доме, автономным модулем, где есть спальня, гостиная, гардеробная, ванная и выход в сад;
- зонирование помещений: в одной части дома обычно размещают спальную зону и рабочий кабинет, а другую отводят под игровую комнату и гостиную. Кухню и столовую располагают между этими зонами. Это один из вариантов. Суть в том, что угловой дом очень удобный для разных вариантов планировки.

Вариант оформления интерьера проекта КЛИМТ ДОМ ТЕХНОНИКОЛЬ
Особенности строительства
Загородные дома Г-образной формы представляют собой уникальное и стильное решение для тех, кто стремится к оригинальности и комфорту в своем жилище. Эти дома отличаются своей необычной формой, напоминающей букву "Г", и предоставляют возможность эффективно использовать доступное пространство.
Особенностью Г-образных домов является их универсальность. Они подходят для различных типов участков, включая узкие и участки с уклоном. Благодаря своей форме, такие дома позволяют создавать оптимальные условия для жизни, обеспечивая комфорт и уют. Г-образные дома обладают высокой функциональностью и удобством.
Главный объем здания служит для размещения гостиной, а дополнительные помещения, такие как спальни, кухня, библиотека и другие, располагаются в крыльях. Это позволяет максимально использовать доступную площадь и создавать комфортные условия для всех членов семьи. При проектировании Г-образного дома важно найти баланс между внешней эстетикой и внутренним комфортом.
Конструкция такого дома может быть сложной, поэтому требуется определенный уровень профессионализма от проектировщиков и строителей.
Ошибки при строительстве
Строительство — дело серьезное. Каждую строительную операцию нужно выполнять профессионально, со всей тщательностью и ответственностью. Есть узкие места. К ним — самое пристальное внимание.
- Если кровля скатная: аккуратно выполнить ендовы — сложный кровельный узел, правильно рассчитать водосток, установить снегозадержатели, предусмотреть возможность обслуживания кровли в период эксплуатации дома.
- Если кровля плоская: сделать уклоны для отвода воды, безукоризненно выполнить гидроизоляцию, правильно рассчитать водосток и снеговую нагрузку — чтобы с потолка не капало.
- Плитный фундамент: предусмотреть достаточную теплоизоляцию и все коммуникации, которые закладывают в плиту.
- Свайный или ростверковый фундамент: тщательно утеплить полы.
- В зависимости от выбранной технологии строительства самого дома: газобетон, каркас, брус, кирпич, толщина стен должна соответствовать климатическим особенностям вашего региона.
- Вентиляция — обязательная инженерная система для любого дома. Как минимум естественная, но быть должна.
Профессионально сделанный проект дома и соблюдение технологии строительства предохранит от ошибок и лишних расходов.
Одноэтажные дома буквой "Г" оригинальные и удобные, но имеют особенности, которые надо учесть при проектировании. Помимо этого, надо предусмотреть посадку дома на участок, с учетом розы ветров, сторон света и видовых характеристик участка. Г-образные дома идеально подходят для тех, кто ищет уникальный стиль и готов вложить средства в свое жилье, чтобы жить в красивом, практичном и комфортном доме.
Присмотритесь к проекту КЛИМТ ДОМ ТЕХНОНИКОЛЬ.


