Готовые решения
Материалы
Модульные дома ТН АТОММ
Для турбаз и парк-отелей
Каркасные дома
По технологии ПРЕКАТ
Внешняя отделка
Водосточные системы
Внутренняя отделка
Комплектующие и инвентарь
Полы и настилы
Моне 55
по технологии ПРЕКАТ
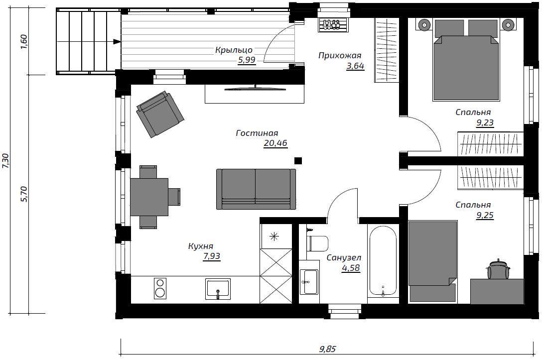
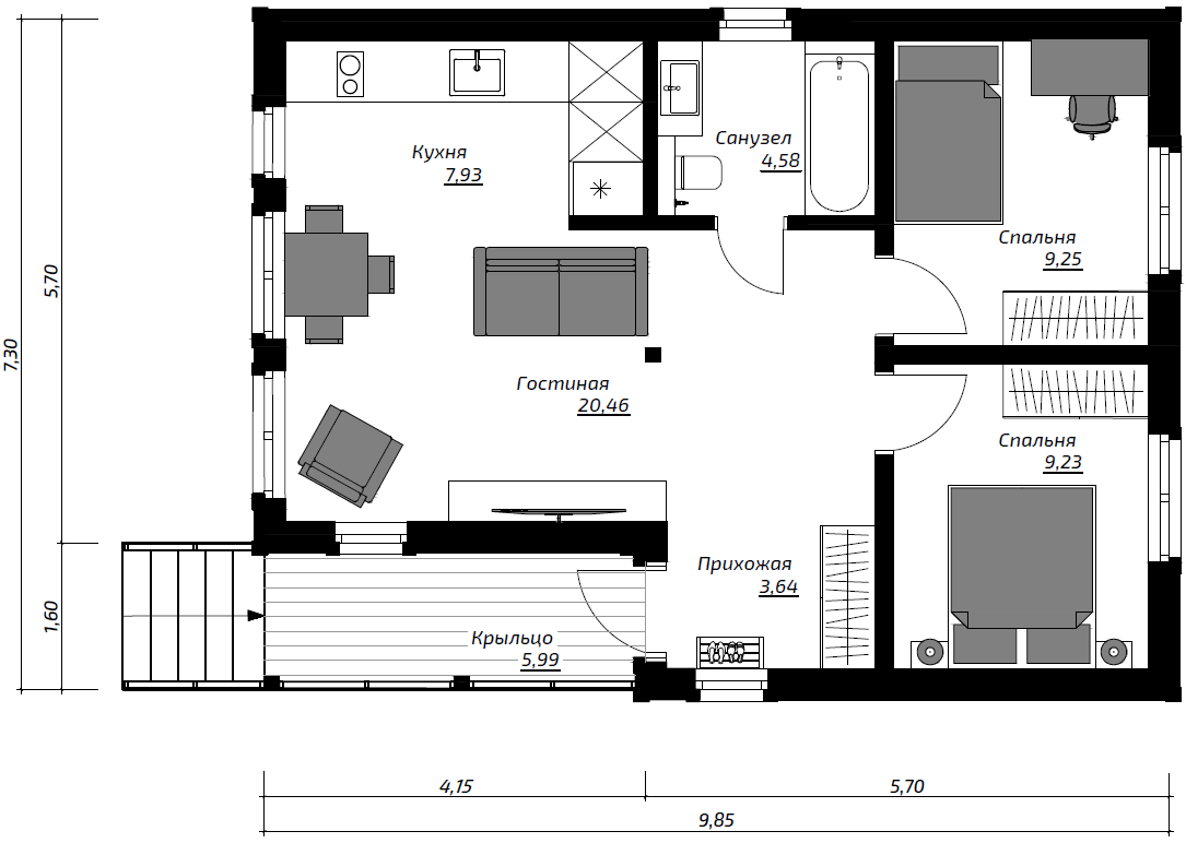
61.08 м2
Общая площадь
55.09 м2
Площадь помещений
от 939 039
₽
Стоимость
Дом, который объединяет преимущества городской квартиры и загородной жизни: здесь вы найдете комфорт и удобства современного жилья в гармонии с природой.
Моне 55
по технологии ПРЕКАТ
от 939 039
₽
61.08 м²
Общая площадь
55.09 м²
Площадь помещений
1 эт.
Количество этажей
2.6-3.8 м
Высота потолков
1
Количество входов
1
Количество санузлов
2
Количество спален
2-4
Количество человек
Запрещено копирование и размещение информации на сторонних ресурсах без разрешения правообладателя
Преимущества сращенной доски
прочностью
Обладает повышенной прочностью и устойчивостью к нагрузкам.
сохранность
Внешний вид сохраняется без изменений на протяжении долгих лет.
отсутствие дефектов
В процессе производства удаляются сучки, что обеспечивает чистую и ровную поверхность
Низкая влажность
Перед сращиванием доски проходят сушку, поэтому их влажность не превышает 13-14%

