Готовые решения
Материалы
Модульные дома ТН АТОММ
Для турбаз и парк-отелей
Каркасные дома
По технологии ПРЕКАТ
Внешняя отделка
Водосточные системы
Внутренняя отделка
Комплектующие и инвентарь
Полы и настилы
Пикассо мини
по технологии ПРЕКАТ
102.35 м2
Общая площадь
81.41 м2
Площадь помещений
от 1 535 651
₽
Стоимость
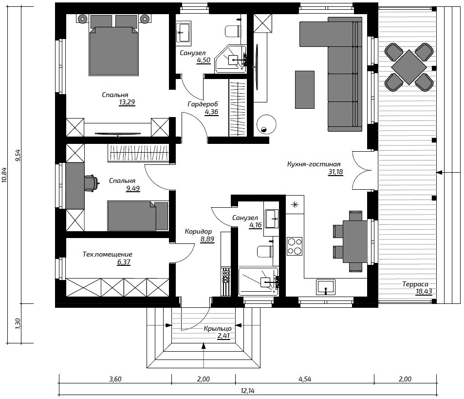
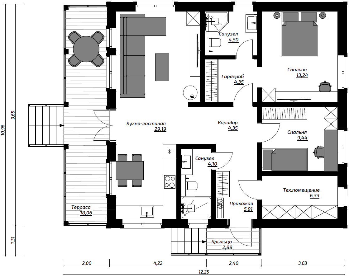
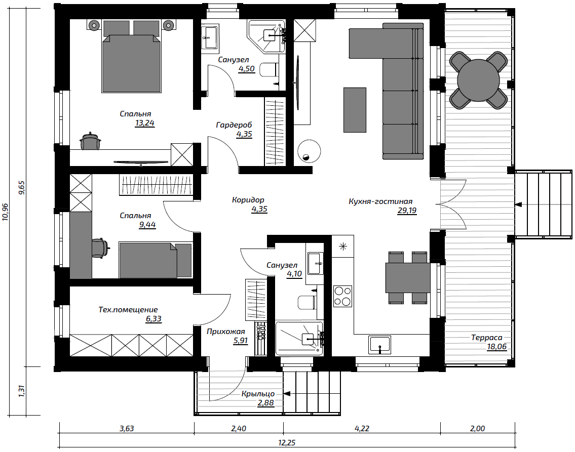
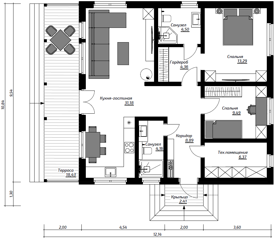
Пикассо мини – это уменьшенная версия популярного проекта наших архитекторов Пикассо.
Пикассо мини
по технологии ПРЕКАТ
от 1 535 651
₽
102.35 м²
Общая площадь
81.41 м²
Площадь помещений
1 эт.
Количество этажей
от 2.785 м
Высота потолков
2
Количество входов
2
Количество санузлов
2
Количество спален
2-4
Количество человек
Запрещено копирование и размещение информации на сторонних ресурсах без разрешения правообладателя
Преимущества сращенной доски
прочностью
Обладает повышенной прочностью и устойчивостью к нагрузкам.
сохранность
Внешний вид сохраняется без изменений на протяжении долгих лет.
отсутствие дефектов
В процессе производства удаляются сучки, что обеспечивает чистую и ровную поверхность
Низкая влажность
Перед сращиванием доски проходят сушку, поэтому их влажность не превышает 13-14%

