Готовые решения
Материалы
Модульные дома ТН АТОММ
Для турбаз и парк-отелей
Каркасные дома
По технологии ПРЕКАТ
Внешняя отделка
Водосточные системы
Внутренняя отделка
Комплектующие и инвентарь
Полы и настилы
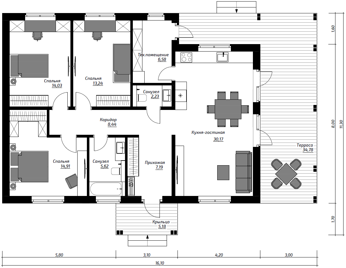
Смарт 142
по технологии ПРЕКАТ
143.85 м2
Общая площадь
102.42 м2
Площадь помещений
от 2 729 866
₽
Стоимость
Просторный и стильный дом, где каждая деталь продумана для вашего комфорта. Мастер-спальня с гардеробной создаст уютное и приватное пространство. Две дополнительные спальни, светлая кухня-гостиная и просторная прихожая формируют гармоничное пространство для жизни. Два санузла и техническое помещение добавят удобства, а уютная терраса станет идеальным местом для отдыха на свежем воздухе.
Смарт 142
по технологии ПРЕКАТ
от 2 729 866
₽
143.85 м²
Общая площадь
102.42 м²
Площадь помещений
1 эт.
Количество этажей
2.9/2.9-4.7 м
Высота потолков
4
Количество входов
2
Количество санузлов
3
Количество спален
4-6
Количество человек
Запрещено копирование и размещение информации на сторонних ресурсах без разрешения правообладателя
Преимущества сращенной доски
прочностью
Обладает повышенной прочностью и устойчивостью к нагрузкам.
сохранность
Внешний вид сохраняется без изменений на протяжении долгих лет.
отсутствие дефектов
В процессе производства удаляются сучки, что обеспечивает чистую и ровную поверхность
Низкая влажность
Перед сращиванием доски проходят сушку, поэтому их влажность не превышает 13-14%

