Готовые решения
Материалы
Модульные дома ТН АТОММ
Для турбаз и парк-отелей
Каркасные дома
По технологии ПРЕКАТ
Внешняя отделка
Водосточные системы
Внутренняя отделка
Комплектующие и инвентарь
Полы и настилы
Моне 54
по технологии ПРЕФАБ
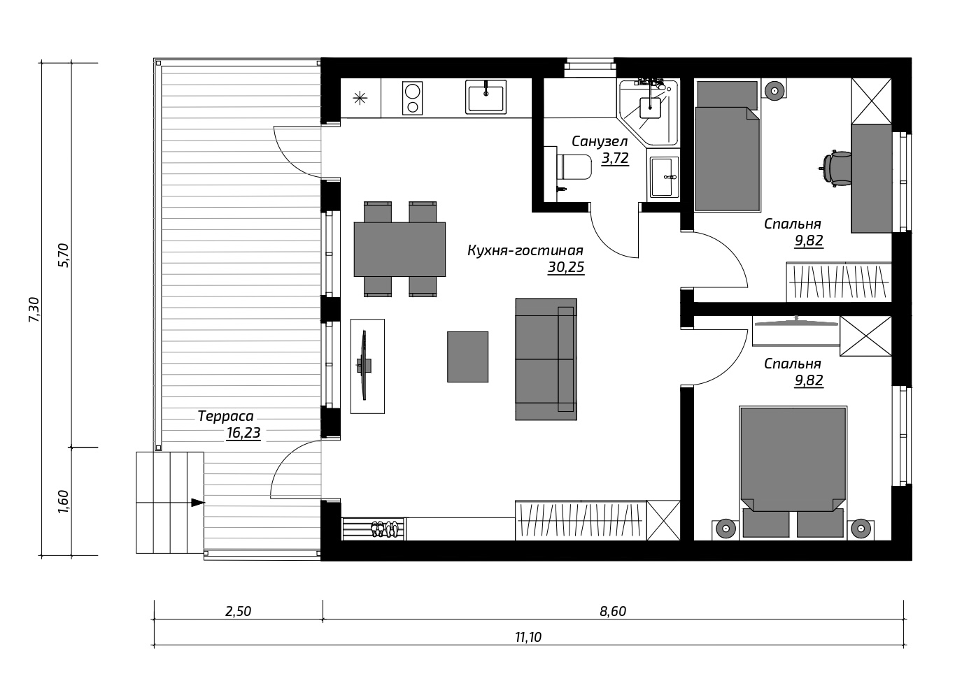
69.84 м2
Общая площадь
53.61 м2
Площадь помещений
от 2 530 629
₽
Стоимость
Под двускатной крышей есть две равнозначные по площади спальни, просторная кухня - гостиная, санузел. К главному фасаду примыкает просторная крытая терраса с двумя выходами из зоны кухни и гостиной. Терраса приглашает на семейные посиделки, а продуманная планировка делает дом удобным для всех домочадцев.
Моне 54
по технологии ПРЕФАБ
от 2 530 629
₽
69.84 м²
Общая площадь
53.61 м²
Площадь помещений
1 эт.
Количество этажей
2.6-3.8 м
Высота потолков
1
Количество входов
1
Количество санузлов
2
Количество спален
3-4
Количество человек
Запрещено копирование и размещение информации на сторонних ресурсах без разрешения правообладателя
Посетите демо-дом
Запишитесь на просмотр демо-дома и ознакомьтесь со всеми деталями проекта
Посетите демо-дом
Запишитесь на просмотр демо-дома и ознакомьтесь со всеми деталями проекта
Выберите тип:
Выберите регион:
Выберите партнера:
Ничего не найдено
Выберите комплектацию
Вдохновитесь интерьером
Выберите строительную компанию
Для оформления заказа на домокомплект необходимо обратиться в сертифицированную компанию-партнёр ДОМ ТЕХНОНИКОЛЬ. Сборку домокомплекта и сопутствующие строительные услуги также оказывает партнёр
Узнайте, как мы построим ваш дом
Расскажем, на каких этапах производства и сборки домокомплекта участвуем мы и наши партнеры
Как мы работаемВам может быть интересно
Все статьи


