Готовые решения
Материалы
Каркасные дома
По технологии ПРЕКАТ
Пикассо
116 м2
Общая площадь
93 м2
Жилая площадь
от 2 089 831
₽
Стоимость
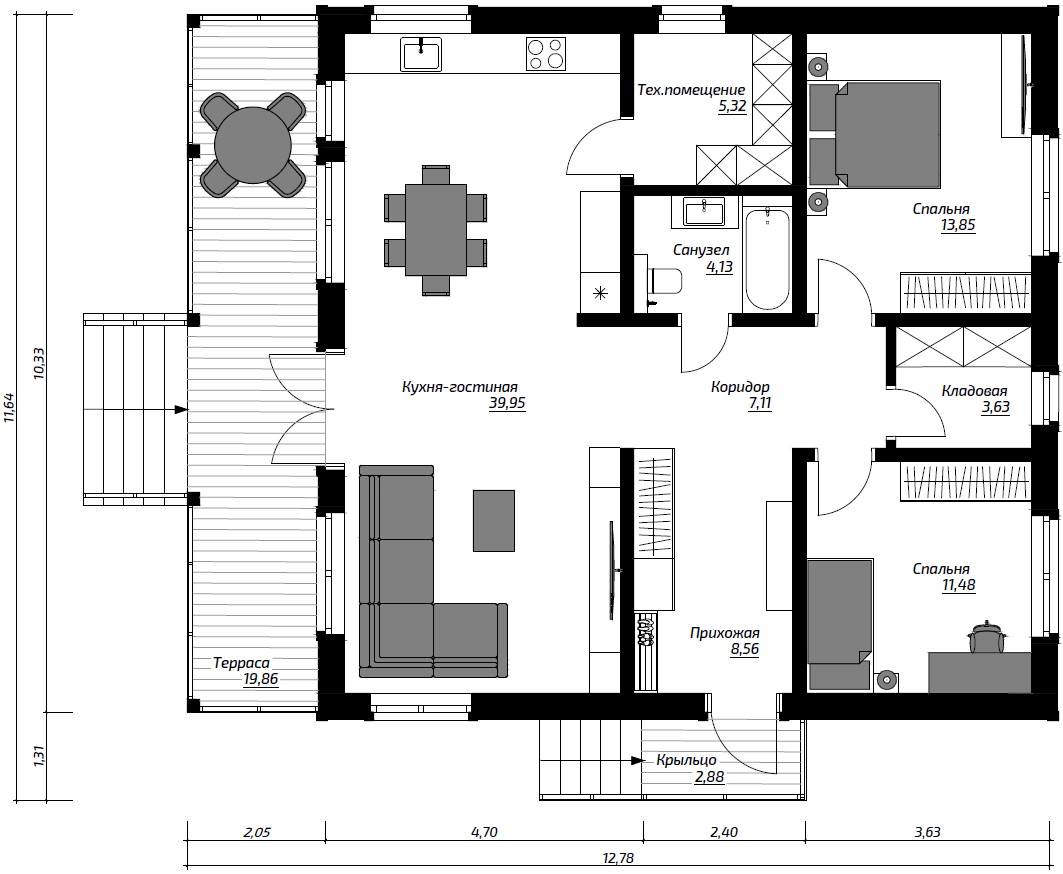
Современный коттедж в скандинавском стиле с разноуровневой крышей, панорамным остеклением, просторной гостиной, двумя спальнями и большой крытой террасой.
Пикассо
от 2 089 831
₽
116 м²
Общая площадь
93 м²
Жилая площадь
1 эт.
Количество этажей
2.7-4.7 м
Высота потолков
2
Количество входов
1
Количество санузлов
2
Количество спален
5
Количество человек
Запрещено копирование и размещение информации на сторонних ресурсах без разрешения правообладателя
Преимущества сращенной доски
прочностью
Обладает повышенной прочностью и устойчивостью к нагрузкам.
сохранность
Внешний вид сохраняется без изменений на протяжении долгих лет.
отсутствие дефектов
В процессе производства удаляются сучки, что обеспечивает чистую и ровную поверхность
Низкая влажность
Перед сращиванием доски проходят сушку, поэтому их влажность не превышает 13-14%
