Сельский дом должен быть уютным
В компании ТЕХНОНИКОЛЬ разработали и поставили на конвейерное производство типовые одноквартирные дома для сельской местности и развития сельских территорий. Расскажем о домах серии «Уютный» от ДОМ ТЕХНОНИКОЛЬ подробнее.
В основе серии — социальные нормативы жилплощади для односемейных домов: 33 кв. м для одного человека, 42 кв. м — на двоих и по 18 кв. м на человека для семей, в которых трое и больше.
И да, это уже не просто проекты, а реальные дома, которые строят для участников социальных жилищных программ для села, а также для восстановления жилфонда, пострадавшего в результате стихийных бедствий и катастроф.


Своего рода «премьера» серии «Уютный» состоялась в 2023 году, когда компания ТЕХНОНИКОЛЬ произвела 40 домокомплектов для пострадавших от лесных пожаров поселков Таежный и Шайдуриха в Свердловской области. Дома ставили на свайно-винтовые фундаменты. Этот тип основания был выбран из-за особенностей грунтов, среди которых преобладают болотистые почвы. Подробнее об этом.


В канун нового 2025 года по проекту Уютный 54 в поселке Гари Свердловской области возвели четыре дома для медиков. Строительство велось в рамках региональных жилищных программ для молодых специалистов. Подрядчик: Solen.House
Чем хороши «уютные»
Словосочетание «быстровозводимые дома» нередко ассоциируются с временными и недолговечными постройками в вахтовых поселках. Особенность «уютной» серии в том, что это не только быстровозводимые, а капитальные жилые дома, соответствующие СП 55.13330.2016 «Дома жилые одноквартирные».



Для всех «уютных» разработаны три варианта внешней отделки: виниловый сайдинг, имитация бруса или штукатурка. Для социальных программ предлагают дома со штукатурными фасадами. На рендере — Уютный 42. Это самый маленький дом в серии
Это теплые и долговечные дома для всех климатических зон. Компания ТЕХНОНИКОЛЬ производит не только дома, это один из ведущих разработчиков и производителей теплоизоляции, кровельных покрытий, материалов для фасадной отделки и элементов инженерных систем для промышленного, коммерческого и гражданского строительства.
Поэтому здесь всегда стремятся оптимизировать проекты, но не будут экономить утеплитель в угоду снижению себестоимости. Пожалуй, единственное, на чем проектировщики предложили сэкономить, — это балконы, террасы, веранды и конструктивно связанные с домом навесы: все площади, за исключением крыльца 2,3 кв. м, — отапливаемые, в теплом контуре.
В пока единственной комплектации «стандарт» стены домов упакованы в 200 мм базальтовой ваты. Утепление перекрытий — 250 мм. С учетом перекрестного утепления, исключающего мостики холода, эти дома соответствуют нормативам тепловой защиты большинства российских регионов. Но очевидно, что для районов с суровыми климатическими условиями возможны модификации с дополнительным утеплением.
При этом ни для кого не секрет, что несмотря на высокие темпы газификации российских регионов, на бескрайних просторах нашей страны немало населенных пунктов и районов ИЖС, до которых газовые трубы пока не дошли.
Особенности панельно-каркасной технологии от ТЕХНОНИКОЛЬ позволяют строить теплые дома на территориях, жители которых в силу названной причины, могут рассчитывать только на электроотопление.
Сжатые сроки строительства. Домокомплекты производят и комплектуют на предприятиях корпорации ТЕХНОНИКОЛЬ в Ленинградской и Нижегородской областях.
При этом каждый будущий дом отправляют к месту сборки на двух или трех еврофурах* На монтаж одного дома бригадой из четырех человек отводится два-три дня. Месяц — на подключение коммуникаций, внешнюю и внутреннюю отделку. Полный цикл, — от фундамента и производства домокомплекта до капитального дома в кондиции «можно въезжать» — два-три месяца. Это показатели почти недостижимые для других строительных методов и технологий.
Возможность строительства в сложных условиях. Сравнительно небольшой вес домокомплекта позволяет доставить его в отдаленный район и смонтировать на облегченном свайно-винтовом фундаменте — например, на участке с выраженным перепадом высот или проблемными грунтами. В то же время, при массовой застройке на подготовленных территориях — могут использоваться фундаменты типа «монолитная плита».
Возможность комплексной застройки территорий. На базе «уютной» серии разработаны секционные сблокированные дома типа «дуплекс» — на две семьи, или «таунхаус» — на несколько семей. Застройка может быть индивидуальной (дома с участками), малоэтажной (секционные дома) или смешанной, когда в рамках одного проекта есть и индивидуальные, и секционные дома.


В июне 2025 года компания ТЕХНОНИКОЛЬ представила проекты блокированных секционных домов на базе серии «Уютный». Это одноэтажные жилые дома, состоящие из нескольких обособленных блоков (секций), каждый из которых предназначен для одной семьи и имеет выход на прилегающий участок или общую территорию.
Для кого строят «уютные»
В основе серии — социальные нормативы жилой площади для квартир и односемейных домов: 33 кв. м для одного человека, 42 кв. м — на двоих и по 18 кв. м на человека для семей, в которых трое и больше. То есть, это семейные дома, среди которых есть варианты и для двух человек, и для многодетных, и для семей из трех поколений.
Примечательно, что при классическом нормировании, планировки здесь не классические однушки, двушки и трешки, а более современный формат — с просторными кухнями-гостиными и небольшими спальнями, такой, который называют «европланировками». То есть, аналогом двухкомнатной квартиры с небольшой кухней здесь будет евротрешка.
Причем, справедливости ради, отметим, что кухонь в нишах и совсем уж тесных спаленок 8 кв. м (нормативы их допускают, а современные застройщики, преимущественно при строительстве многоквартирных домов, — активно реализуют такие проекты) мы не обнаружили. Самая маленькая подростковая комната, которую мы нашли — 9,5 кв. м в Уютном 72.
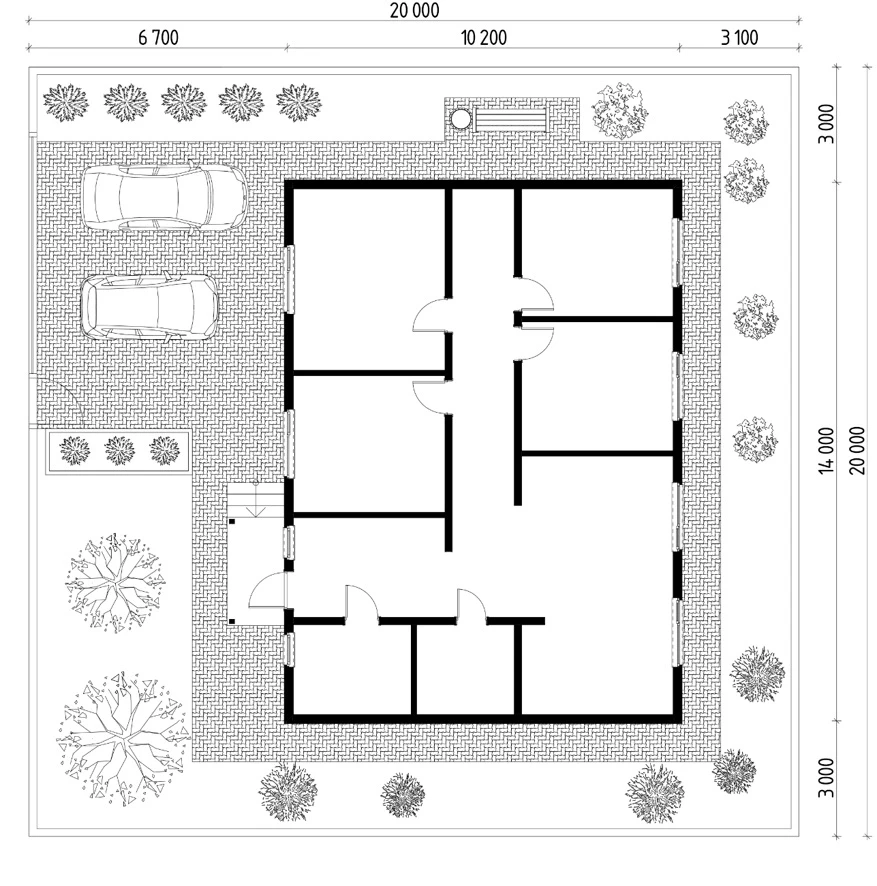
Есть еще нюанс. Разрабатывая планировки серийных домов, проектировщики вписывали их на участок квадратной формы 4 сотки (со стороной 20 метров). Поэтому даже самый большой «Уютный» впишется на маленький участок, но останется место и для удобной парковочной площадки на две машины, и для небольшого огорода с хозблоком, и для лужайки с беседкой или игровым домиком.
И маленький «Уютный» (42 кв. м), и самый большой одноэтажный (126 кв. м) впишутся на участок в четыре сотки
Во всех домах есть технические помещения от 5 кв. м с окном. При газовом отоплении их обычно отводят под котельную, при водоснабжении от скважин и колодцев — под размещение систем домашней автоматики и водоподготовки. Но если это дом с центральными коммуникациями или электроотоплением, то может получится помещение для хранения, под мастерскую или мини-кухню. Такое в загородном доме никогда не лишнее.
Планировки домов серии «Уютный»
В целом, планировки простые — без темных тамбуров и закутков, — сделаны на основе единой модульной сетки с шагом 0,6 м. При строительстве это оптимизирует расход материалов, а при обустройстве дома — позволяет без неожиданностей и головоломок вписывать в габариты помещения стандартную мебель.
Давайте изучим, какие варианты предлагают.
УЮТНЫЙ 42
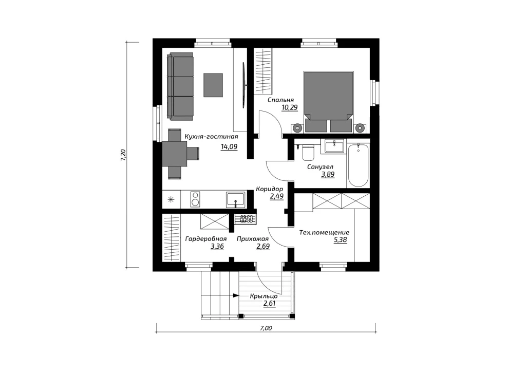
Самый маленький дом из «уютных». Отапливаемая площадь — 42 кв. м соответствует габаритам однокомнатной квартиры комфорт-класса, а если оперировать современными форматами, то это евродвушка.
Планировка очень удобная: окна на четыре стороны света, в комнатах — они с двух сторон, потому и освещение тоже двустороннее. Санузел по площади как в типовой квартире улучшенной планировки — около 4 кв. м: можно разместить не только душ, но и ванну. Есть гардеробная и техническое помещение под котельную — немаловажная деталь: оба помещения с окнами.
УЮТНЫЙ 54
Двухкомнатная квартира 54 кв. м — это та самая «двушка», которая нередко фигурирует в аналитических отчетах и инфографике, как среднестатистическое российское жилье. А еще — это квартира для семьи из трех человек, соответствующая нормативу 18 кв. м на человека.
В данном случае — это не квартира, а дом с габаритами 7,5 x 8,5 м: с просторной кухней-гостиной, большой ванной комнатой и небольшими спальнями — детской и для взрослых. То есть, классическая «двушка» комфорт-класса, или евротрешка — кому как больше нравится.
«Фишка» проекта — холл-прихожая, плавно перетекающая в гостиную: никаких тамбуров и лишних перегородок, съедающих пространство. Просто и функционально.
Есть еще момент. Во всех одноэтажных домах серии, кроме самого маленького, у фронтонной стены со стороны кухни и технических помещений нет окон.
С одной стороны, это традиционная компоновка для домохозяйства в сельской местности, где с теневой северной стороны располагают закрытые дворы с хозблоками, навесами и дровниками (если участок узкий и компактный, то навес для хознужд можно пристроить прямо к стене дома).
С другой — предложив такое решение, проектировщики оставили себе возможность разрабатывать на базе серии массовую застройку с секционными домами — таунхаусами и дуплексами с такими же планировками.
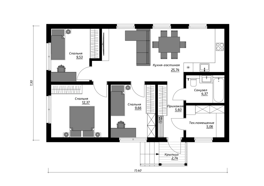
УЮТНЫЙ 72
Дом для четырех человек, например, для семьи с двумя детьми в формате трехкомнатной квартиры. По ширине он такой же, как и предыдущий, но на три метра длиннее. Результат: появилась возможность разместить не две, а три компактные спальни и оптимизировать общую зону — теперь это не просто кухня-гостиная, а кухня-гостиная-столовая.
Вытянутая гостиная с тремя окнами выглядит как настоящая зала, в которой можно не только принять гостей, но также выделить игровую или кабинетную зону.
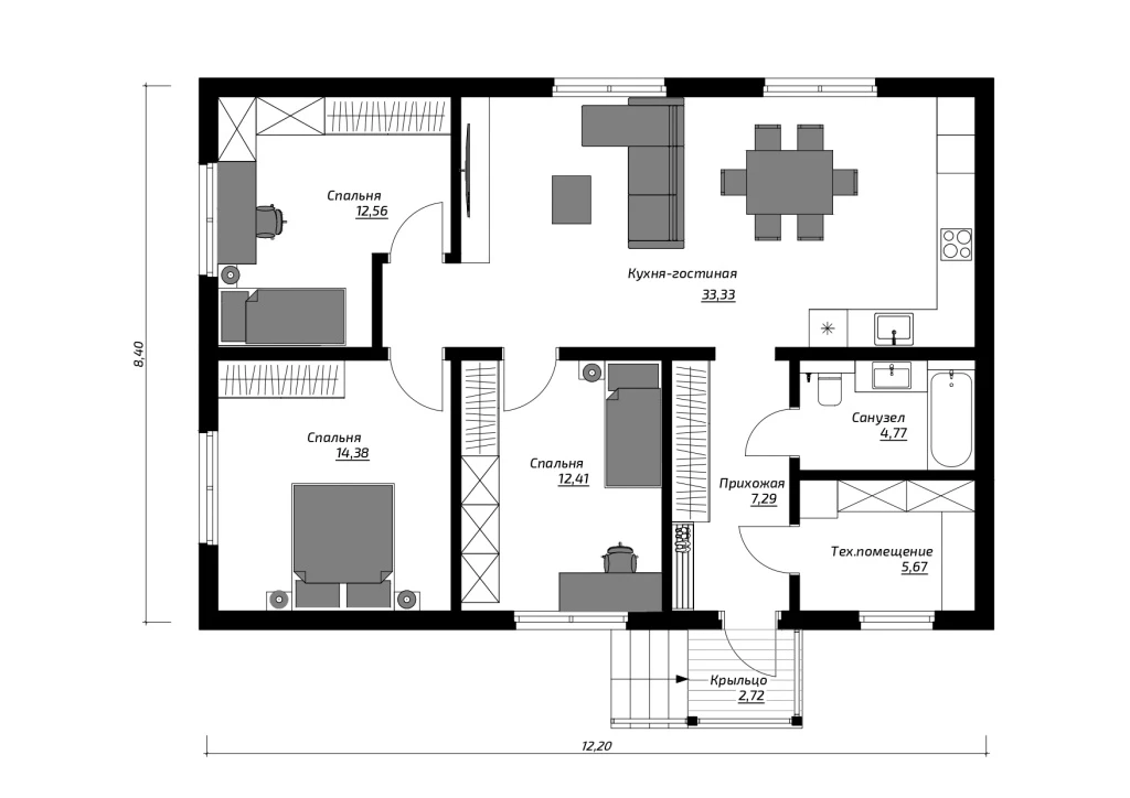
УЮТНЫЙ 90
Уютный 90 — это тоже трехкомнатная квартира для семьи с двумя детьми, по планировке похожая на Уютный 72. Но здесь — уже не просто компактные спальни, а полноценные индивидуальные жилые комнаты 12,5−14,4 кв. м. Кухня-гостиная — 33 кв. м.
Пожалуй, это именно такой дом формата «до 100 кв. м», в котором предусмотрен максимум личного жизненного пространства для каждого члена семьи
Такой дом также может быть жильем для представителей льготных категорий, которые в силу профессионального статуса или заболеваний, могут быть признаны нуждающимися в дополнительной площади. Это инвалиды, высшие отставные офицеры, творческие работники, представители судебной системы или силовых ведомств — в каждом регионе разные списки таких льготников.
УЮТНЫЙ 108
Три жилые комнаты (11,6, 16 и 16 кв. м), кухня-гостиная — 29,7 кв. м, два санузла, широкий коридор. Техническое помещение здесь просторное (6,4 кв. м) с окном — можно оборудовать мастерскую, сделать мини-кухню или комнату для хобби.
Это дом для семьи из трех поколений, или, как возможный вариант для семьи с тремя детьми. Но он не будет тесным, даже если семья подрастет. По всей видимости, в перспективе, за счет некапитальной перегородки, кухню-гостиную легко разделить на два помещения.
УЮТНЫЙ 126
Такой дом соответствует социальным нормативам для семьи из семи человек. В доме четыре спальни, точнее четыре жилые комнаты от 13 до 18 кв. м, два санузла, один из которых — шестиметровая ванная комната. Прихожая — здесь больше чем просто прихожая: это холл 10,5 кв. м с окном. Техническое помещение — 7 кв. м.
Габариты такого дома — 10 х 14 м — это максимум, который можно разместить на участке в четыре сотки, чтобы, как и в других проектах серии, осталось место для парковочной площадки, зоны отдыха и огорода с хозблоком.
По большому счету, ширина 10 м — почти максимум для одноэтажного дома. В противном случае в глубине дома не будет дневного света. В Уютном 126 эта проблема решена — за счет просторного холла с окном и отсутствия лишних перегородок между гостиной, коридором и холлом.
Фронтонные стены — без окон: дом с такой планировкой может быть основой не только для индивидуальной, но и для секционной застройки. И, к слову, одноэтажный таунхаус 126 кв. м — это тоже очень просторный семейный дом.
УЮТНЫЙ 144

Двухэтажный дом с жилой площадью 144 кв. м. При компактном пятне застройки 8 х 10 м — в нем нет маленьких комнат и темных углов. Все пять жилых комнат — почти по 15 кв. м, а лестница — удобная, безопасная и с естественным освещением.
Это дом, ориентированный в первую очередь, на большие семьи. Например, первый этаж — родительский, второй — отдан детям. Или, в варианте семьи из трех поколений на первом этаже — комната для представителей старшего поколения.
Вариант с пятью спальнями — не догма. Любая из комнат может быть библиотекой, рабочим кабинетом, хобби-комнатой или дополнительной гостиной. Все зависит от состава и потребностей семьи. Но в любом случае в таком доме у любой семьи есть возможность расти и работать над улучшением демографической ситуации.
Посмотрите все дома серии «Уютный» в каталоге быстровозводимых панельно-каркасных домов ДОМ ТЕХНОНИКОЛЬ. Каталог регулярно обновляется и дополняется
Резюмируем
-
«Уютные» — это серия панельно-каркасных домов, в основу которой положены социальные нормативы. Любой дом из серии «Уютный» — это комфортный дом-квартира для постоянного проживания. В серии представлены шесть проектов одноэтажных домов и один — двухэтажный. Планировочные параметры «уютных» соответствуют квартирам комфорт-класса. В серии есть аналоги одно-, двух-, трех- и многокомнатных квартир.
-
Серия «Уютный» позволяет осваивать новые территории, восстанавливать жилой фонд, пострадавший в результате стихийных бедствий и других форсмажорных обстоятельств, формировать кварталы, сочетающие индивидуальную и секционную застройку — в том числе на территориях со сложными геологическими условиями, дефицитом энергетической и транспортной инфраструктуры.
Сегодня быстровозводимые дома и социальное нормирование ассоциируется в первую очередь с хрущевскими пятиэтажками, которые принято ругать. Но именно массовое строительство и типовые проекты, ориентированные на семейное жилье, в свое время позволяли строить города, новые поселки, осваивать территории, восстанавливать жилфонд, пострадавший от войны и шаг за шагом улучшать демографическую ситуацию.
К тому же, прогресс не стоял на месте. Нормативы менялись. На смену пятиэтажкам с пятиметровыми кухнями, смежными комнатами и неважной звукоизоляцией пришли серии многоквартирных домов с улучшенными планировками. А для тружеников села разрабатывались типовые проекты семейных домов, которые и сегодня можно считать образцовыми.
Причем на поверку жилье, соответствующее социальным нормативам, оказалось гораздо более гуманным и человечным, чем сверхплотная высотная застройка рыночного периода, под завязку набитая сверхмалогабаритными квартирами.
Новая серия — далеко не хрущевки. Это семейные дома, ориентированные на развитие жилых территорий. Все площади и технические параметры рассчитаны с учетом демографической ситуации современной России, социальных нормативов и политики, направленной на поддержку семейных ценностей.
















