Современный дом на селе: каким он должен быть
Компания «Стройкультура», сертифицированный подрядчик проекта ДОМ ТЕХНОНИКОЛЬ, — завершает строительство трех жилых домов в рамках госпрограммы «Комплексное развитие сельских территорий» в Нижегородской области. Расскажем подробности строительства в городе Шахунья, расположенном в 250 км от областного центра.
На данный момент оштукатурены и покрашены фасады, уже есть черновая отделка помещений. В ближайшее время строители примутся за инженерные сети чистовую отделку и параллельно ведут работы по благоустройству.
Когда здесь сделают ограждение, парковочные площадки и дорожки эти дома станут украшением города Шахунья и наглядно покажут, какими должны быть дома у тех, кто в прямом смысле, кормит страну.
О программе
Государственная программа комплексного развития сельских территорий принята в 2019 году и рассчитана до 2031 года.
Одно из приоритетных направлений — создание условий для обеспечения доступным и комфортным жильем сельского населения. Например, социальные выплаты на строительство (приобретение) жилья гражданам, проживающим на сельских территориях и строительство социального жилья для специалистов.
Горожане приобретают загородные дома в ипотеку. Но даже ипотека с субсидированными ставками заставляет экономить и отказываться от излишков площадей.
Селянам в рамках программы развития, он доступен не в ипотеку, а по социальным контрактам.
Отметим, что для участия в жилищных госпрограммах новое жилье должно соответствовать требованиям социальных нормативов.
Они у нас гуманные: от 33 кв. м на одного, не меньше 42 кв. м на двоих, и от 18 кв. м на человека, когда в семье трое и больше — это минимум, необходимый, чтобы проект получил государственное финансирование и субсидирование.
Именно поэтому современное социальное жилье для сельской местности — далеко не хрущевки и не сверхплотная высотная застройка, забитая под завязку квартирами-студиями. Это дома, ориентированные на развитие территорий, поддержку семейных ценностей и улучшение демографической ситуации.
Односемейный дом по проекту СК-72 — именно такой. Это «фирменный» проект «Стройкультуры», он сделан на базе панельно-каркасных проектов ДОМ ТЕХНОНИКОЛЬ, и при этом — не только полностью отвечает требованиям социальных жилищных программ, но и явно превосходит их.
Если все участники будут строить жилье такого уровня, вполне реально, что к 2031 году доля сельского населения в общей численности в нашей стране достигнет 25%, что является одной из целей программы.
О проекте СК-72
Это современный, энергоэффективный, да и просто ладный и уютный дом с симметричной скатной крышей и большими портальными окнами в гостиной.
Прототипом СК–72 стал проект МОНЕ 75 от ДОМ ТЕХНОНИКОЛЬ. У него похожая планировка, внутренний объем и экстерьер. Но МОНЕ 75 — вариант скорее для пригородного коттеджного поселка с домами комфорт-класса. Проект СК–72 это классический и очень практичный дом для постоянного проживания в сельской местности, но также с твердой заявкой на комфорт-класс.
Домокомплекты делают на заводах ТЕХНОНИКОЛЬ по префаб-технологии. Это значит, что в силовых каркасных конструкциях — только сухая древесина, оптимальная для региона застройки толщина теплоизоляции, все материалы — включая теплоизоляцию, пароизоляционные пленки, мембраны, кровельные покрытия — производства ТЕХНОНИКОЛЬ.
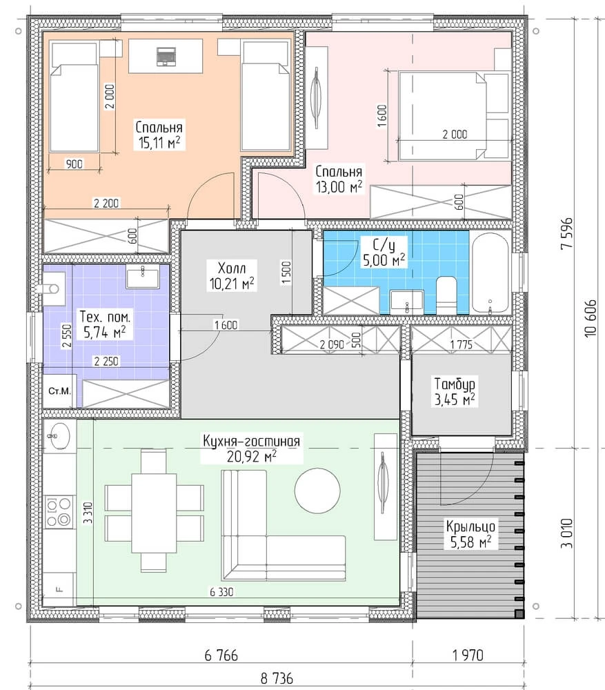
Планировка современная и эргономичная. Общая площадь 73,4 кв. м — это только отапливаемые помещения. Но есть еще крыльцо 5,6 кв. м под крышей.
Дом одноэтажный, вход — через теплый тамбур. В доме две спальни, причем обе большие: 13 и 15,1 кв. м. Есть просторная ванная комната с окном и техническое помещение, которое может по совместительству быть кладовкой и прачечной.
Объединенное пространство холла-кухни-гостиной — больше 30 «квадратов». Потолки в комнатах — 2,7 м, в зоне кухни-гостиной — высокий сводчатый — с полуоткрытыми балками в интерьере.
Портальные окна в гостиной — энергосберегающие: можно круглый год наслаждаться видами и обилием естественного света, не переплачивая за отопление и кондиционирование.
Кстати, фундаменты тоже основательные и соответствуют комфорт-классу: не демократичные винтовые сваи, а утепленная шведская плита (УШП) с контуром теплого пола. Не нужно навесных радиаторов и трубной обвязки, зимой система будет обеспечивать комфортным теплом, поднимающимся снизу, летом — приятно холодить.
О городе Шахунья
Сегодня город Шахунья — развитый административный центр с населением в 17 626 человек, а начиналось все еще в 1921 году, когда основали рабочий поселок для строителей железной дороги, связавшей Нижний Новгород и Котельнич.
Одновременно и современный город со всеми плюсами, и старый, добрый ПГТ в лучших советских традициях, где многоэтажная застройка органично переплелась с частными домами, в которых проживает большая часть населения.
О подрядчике
Строительная компания «Стройкультура» работает в сфере индивидуального жилищного строительства по Приволжскому федеральному округу. Специализируется на каркасно-панельных быстровозводимых домах заводского изготовления — prefab-технологии.


