Проекты одноэтажных домов
Популярность одноэтажных домов в загородном строительстве растет. Расскажем, в чем преимущества одноэтажных проектов? На что обратить внимание при выборе одноэтажного дома? Какие типовые одноэтажные проекты есть в ассортименте каркасно-панельных домов ДОМ ТЕХНОНИКОЛЬ.
Преимущества каркасных одноэтажных домов
- В одноэтажных домах нет межэтажной лестницы. Это удобно пожилым людям, и тем, кому сложно передвигаться. А малыши точно не упадут с лестницы.
- Не надо ставить замки на окна второго этажа для безопасности детей.
- Лестница между этажами не занимает полезную площадь.
- Одноэтажный дом удобно обслуживать — красить, ремонтировать, убирать снег с крыши, прочищать водосток. Можно все это делать самостоятельно.
- Сейчас стали популярными одноэтажные дома площадью 100 - 150 м².
Существенным недостатком одноэтажного дома является то, что он занимает больше места на участке по сравнению с двухэтажным домом той же площади.
На что следует обратить внимание при выборе одноэтажного дома?
- Выделите достаточно времени на выбор проекта. Покупка дома — серьезное решение, которое надо тщательно обдумать и рассмотреть со всех сторон в мельчайших деталях.
- Убедитесь, что на вашем участке достаточно места для одноэтажного дома.
- Подумайте, как вы будете ухаживать за домом — с обычным одноэтажным домом все просто и совсем не высоко, а если вы выбрали проект с высокими потолками, то одной стремянкой тут не обойдешься, да и храбрости нужно побольше, чтобы работать на шестиметровой высоте.
- Продумайте экстерьер — каким вы хотите видеть свой дом снаружи?
- Определите потребности каждого члена семьи: сколько нужно спален и санузлов, кому и когда нужна тишина, кому нужно рабочее место и так далее?
- Будут ли в доме животные, и где вы будете мыть собаке лапы после прогулки?
Каркасно-панельная технология строительства
Компания ТЕХНОНИКОЛЬ производит каркасно-панельные дома на своем заводе в городе Семенов Нижегородской области. Производительность предприятия — 100 тыс м² готового жилья в год. Это высокотехнологичное производство полного цикла — от сушки древесины до готовых домокомплектов.
Когда каркасные панели для кровли, перекрытий, внутренних и наружных стен делают на заводе, перевозят на участок и строят из них, получается каркасно-панельный дом.
Каркас состоит из конструкционных досок и клееного бруса. В ячейки каркаса укладывают утеплитель и закладные под коммуникации. Толщина утеплителя зависит от климатических условий вашего региона. Утеплитель защищают строительными пленками и мембранами и закрывают листовым материалом.
Да, это именно каркасный дом, панели для которого делают на заводе и только собирают на месте. Получается быстро и очень качественно, потому что завод оснащен по последнему слову техники, а специалисты контролируют каждый этап производства. Мы используем для каркаса качественную древесину камерной сушки и строительные материалы собственного производства из профессиональной линейки ТЕХНОНИКОЛЬ. Строить из таких панелей можно круглогодично.

Линия по производству стеновых панелей по каркасно-панельной технологии на заводе ТЕХНОНИКОЛЬ
На кровельных панелях есть крепления для водосточных желобов, а сами трубы и желоба идут в комплекте. На заводе можно частично набить гибкую черепицу на кровельные панели. Сделать фасады с подготовкой под вентилируемый фасад или оштукатурить полуавтоматическим способом на заводе. В стеновые панели на производстве вставляют окна с обязательной герметизацией стыков. Уже есть инженерные каналы для подключения электрики — это удобно, продумано и экономично.

Готовая кровельная панель
Дом готов на 90% при выходе с завода: панели утеплены, утеплитель защищен строительными пленками, в стеновых панелях есть закладные для проведения коммуникаций и окна, на кровельных панелях есть гибкая черепица. Готовые панели доставляют на стройку и собирают дом.
Проекты одноэтажных домов от ДОМ ТЕХНОНИКОЛЬ
Среди типовых проектов ДОМ ТЕХНОНИКОЛЬ есть 8 одноэтажных проектов серии «Лайт» и 6 одноэтажных домов серии «Уютный». Они подходят и для круглогодичного, и для сезонного проживания.
Серия «Лайт»
МАТИСС
Если вы предпочитаете оригинальные решения и любите экспериментировать, обратите внимание на проект МАТИСС площадью 54,19 м². Этот малыш обладает характером и шармом. Вы полюбите его с первого взгляда. Внутри есть все необходимое: гостиная с высокими потолками, кухонная зона, санузел с окном и спальня на антресоли. Можно выбрать один из трех вариантов наружной отделки.
ГОЙЯ
Проект ГОЙЯ площадью 71,19 м² — это классический загородный дом с рациональным интерьером. На 71 м² площади разместились прихожая, гостиная-кухня, котельная, ванная комната и две спальни с местами для хранения. Все помещения просторные и светлые. Проект предусматривает два варианта планировок и 4 варианта отделки фасада.
МОНЕ
Проект МОНЕ почти такой же по площади — 72,19 м², но с просторной открытой террасой. Отличный вариант, если вы любите проводить время на открытом воздухе. Большая площадь остекления главного фасада делает дом светлым, а потолки по кровле добавляют интерьеру объем. Внутри есть прихожая, ванная комната, гостиная-кухня и две спальни. Проектом предусмотрена одна планировка и 3 варианта внешней отделки.
ВАНГОГ
Коттедж ВАНГОГ выглядит современно и смело. Это одноэтажный дом площадью 98,71 м² с террасой под единой односкатной кровлей и практичным планировочным решением. Дом получился просторный и светлый. Здесь 3 спальни, 2 санузла, кухня-гостиная, котельная, прихожая и великолепная терраса. Выбирайте из двух планировок и четырех видов отделки фасада.
ПИКАССО
Проект ПИКАССО — это современный загородный дом площадью 129,4 м² с двускатной кровлей и практически полностью застекленным главным фасадом, к которому примыкает большая терраса. В доме есть кухня-гостиная, две спальни, разделенные котельной, большая ванная комната с сауной и прихожая. Приватную зону от общественной отделяет холл. Проектом предусмотрены 2 планировки и 4 вида наружной отделки.
ПИКАССО — хорош собой и настолько пользуется спросом, что мы сделали его версию меньшего размера — ПИКАССО мини.
ПИКАССО мини
ПИКАССО мини — младший брат нашего популярного проекта ПИКАССО. Архитектура и планировка точно такие же. Только площадь на 15 м² меньше и составляет 114 м². 1 планировка, 4 варианта отделки фасада — на ваш выбор.
СЕЗАНН
Наши архитекторы вдохновлялись скандинавской эстетикой при создании проекта СЕЗАНН. Главным украшением экстерьера дома площадью 149,98 м² является угловая терраса. Интерьер сдержанный и практичный. В зоне кухни-гостиной — окна в пол. В доме 3 спальни, 2 санузла и, конечно, сауна. Есть совмещенная с постирочной большая котельная. У проекта СЕЗАНН: 1 планировка и 4 варианта фасада.
ВЕЛАСКЕС
Под вальмовой кровлей на 151 квадрате уютно разместились 3 спальни, 2 санузла, котельная, прихожая, кухня-столовая и гостиная. Все помещения просторные. Спальные комнаты отделены коридором от шумной гостиной зоны. В проекте — две планировки и три варианта оформления фасада.
Серия «Уютный»
Уютный 42
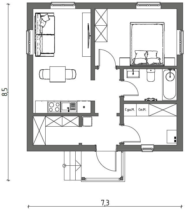
Классический дачный дом площадью всего 42,02 м². Зато какой вместительный. В доме есть спальня, ванная комната, прихожая, гардеробная, кухня-гостиная и котельная, крыльцо с навесом. Подходит для проживания одного или двух человек. Мы предлагаем 2 варианта внешней отделки — штукатурка и имитация бруса.
Уютный 54
В доме площадью 54,67 м² на одну комнату больше: 2 спальни, кухня-гостиная, ванная комната, котельная - постирочная, прихожая, крыльцо с навесом. Здесь будет удобно семье с одним ребенком. Этот дом можно заказать с отделкой штукатуркой или имитацией бруса.
Уютный 72
Площадь дома Уютный 72 составляет 72,43 м². В доме — бескоридорная или центрическая планировка, то есть вся площадь дома полезная. А из открытой гостиной - кухни можно попасть во все помещения дома: 3 спальни, прихожую, которая прячет, ванную комнату и техническое помещение. Вход в дом оформлен крытым крыльцом. Уютный 72 подходит для семьи с двумя разнополыми детьми. В качестве наружной отделки можно выбрать штукатурку или вентилируемый фасад с имитацией бруса.
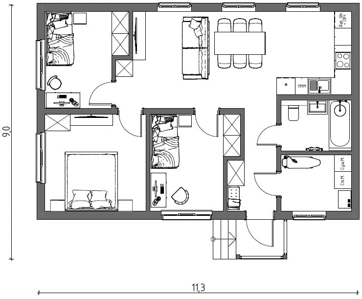
Уютный 91
В проекте Уютный 91 наши архитекторы тоже применили практичную бескоридорную систему планировки, где задействован каждый сантиметр площади. Гостиная - кухня — центр дома, как и положено. Из гостиной можно попасть в 2 спальни, а из прихожей — в ванную комнату, котельную и 1 спальню. Для вашего удобства мы сделали крыльцо с навесом. Дом идеально подходит для семьи с двумя однополыми детьми и пожилыми родителями. Штукатурка или имитация бруса для отделки фасада — на выбор.
Уютный 108
Этот проект создан для тех, кому важно уединение — приватная спальная зона отделена коридором от общественной гостиной зоны. В доме 3 спальни, гостиная - кухня, гардеробная, прихожая, ванная комната, техническое помещение, крыльцо с навесом. Здесь с комфортом разместится семья с 2 детьми одного пола и пожилыми родителями. Проектом предусмотрено 2 варианта наружной отделки.
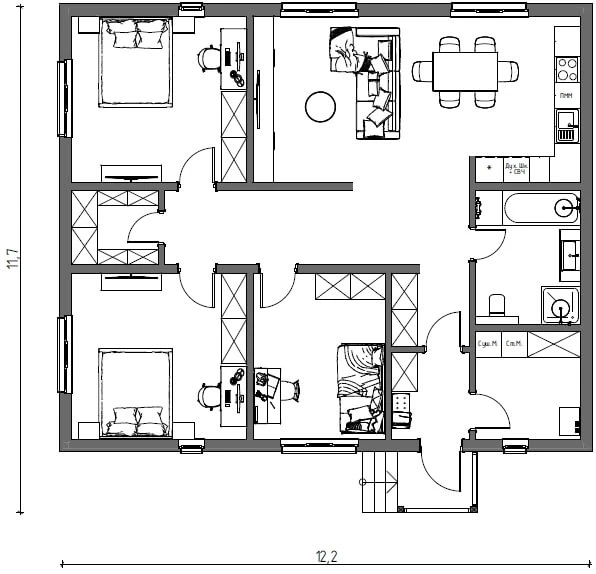
Уютный 126
Дом с самой большой площадью, среди одноэтажных коттеджей нашей уютной серии. Подходит для семьи с тремя детьми и пожилыми родителями. В доме: 4 спальни, ванная комната, котельная - постирочная, прихожая, крыльцо с навесом. Для внешней отделки выбирайте штукатурку или вентилируемый фасад с имитацией бруса.
Заключение
Чтобы выбрать оптимальный одноэтажный дом для своей семьи выделите время. Сопоставьте ваши желания и возможности. Просматривайте типовые проекты, выезжайте в демонстрационные дома. Примеряйте проекты на себя: представьте, как вы и ваши родные будете жить в доме, работать, отдыхать, растить детей, принимать гостей.

















