Простой и обаятельный технократ
Дом ДАВИНЧИ снаружи
Дом ДАВИНЧИ выделяется из серии проектов СТАНДАРТ как минимум названием. Другие дома серии названы именами европейских художников, живших в XIX-XX веках. ДАВИНЧИ — другая эпоха и иной темперамент. Давайте посмотрим, какой он снаружи и изнутри.
Дом ДАВИНЧИ внутри
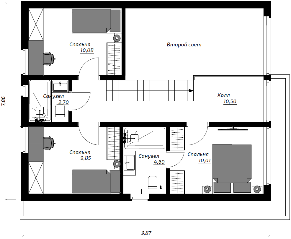
Теперь изучим планировку. Компоновка и состав помещений — стандартные для семейного дома. Общая площадь — 131 кв. м. Терраса — 22,6 кв. м.
На первом этаже — прихожая,санузел, жилая комната, обозначенная как кабинет, просторная кухня-столовая и гостиная. С террасы предусмотрены два входа в дом: в прихожую и в кухню - через сдвижную портальную дверь.
На втором этаже — мастер-спальня с индивидуальным санузлом, две детские и 10-метровый холл.
Кто сделал ДАВИНЧИ
Дом ДАВИНЧИ — авторский проект архитектора из Казани Данира Сафиуллина. Проект разработан для компании ТЕХНО ДОМ и реализован в составе партнерства ДОМ ТЕХНОНИКОЛЬ.

Об авторе проекта
После окончания в 2005 году Казанского Государственного Архитектурно-строительного университета (КГАСУ) Данир Сафиуллин успел получить ряд международных премий. Кроме того, Даниру довелось несколько лет поработать в качестве ведущего архитектора в мастерской легендарного Тотана Кузембаева — законодателя мод в современной деревянной архитектуре. Этот штрих биографии архитектора заслуживает, чтобы быть отмеченным. В отделке дома ДАВИНЧИ влияние непревзойденного мастера деревянной архитектуры и умение работать с таким пластичным, но капризным материалом, как древесина, хорошо видны.
Сборка домокомплекта ДАВИНЧИ
Производство домокомплекта полного цикла практически полностью автоматизировано, что позволяет точно соблюдать проектные расчеты, исключать нестыковки. Заказчик самостоятельно строит только фундамент. Весь теплый контур изготавливается на предприятии, включая стеновые, кровельные панели и панели перекрытий.
ДАВИНЧИ — это семейный дом. Он рассчитан на семью, в которой любят гостей и есть дети разных возрастов. Но в то же время, наличие жилой комнаты-кабинета на первом этаже делает его универсальным вариантом для семьи из трех поколений.

