Обновленный МОНЕ 75 запустили в производство
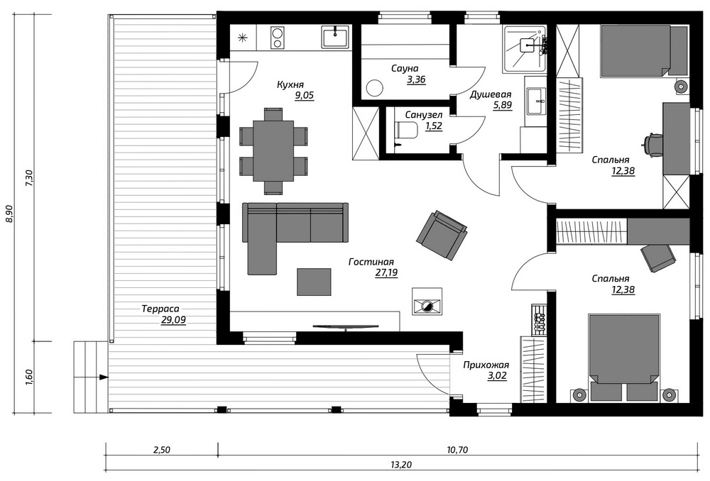
Знакомьтесь: обновленный МОНЕ 75 из каталога ДОМ ТЕХНОНИКОЛЬ — дом в стилистике альпийского шале. Пятно застройки — около 9х13 м. Один этаж, отапливаемая площадь — 74,8 кв. м плюс полуоткрытая терраса с крыльцом почти тридцать квадратов — итого 104 кв. м. Высота потолков — 2,5 − 4 м.
В доме — два входа: с крыльца под крышей в прихожую и с открытой террасы в гостиную.
Для заказа доступны два варианта планировки — базовая и зеркальная. Возможность выбора между ними — позволяет оптимально сориентировать дом по сторонам света в зависимости от конфигурации участка и расположения въезда.
Это базовый вариант: площадь объединенного пространства «кухня–гостиная–прихожая» дает широкие возможности зонирования. Благодаря возможности «отзеркалить» планировку, можно добиться оптимальной ориентации по сторонам света в зависимости от расположения заезда на участок. Еще одна особенность проекта — не просто санузел, а ванная комната с помещением под сауну.
Также МОНЕ 75 предлагают в версии «свободная планировка» — с двумя объемами 35 и 43,6 кв. м (оба двусветные, разделены перегородкой). Здесь тоже есть зеркальный вариант, отличающийся расположением прихожей и крыльца.
О проектах МОНЕ от ТЕХНОНИКОЛЬ: Сейчас в семействе МОНЕ серии СтандART — два проекта: МОНЕ 60 и обновленный МОНЕ 75.
Особенность МОНЕ 60 — складская программа: готовые к отгрузке панельно-каркасные домокомплекты всегда присутствуют на складах компании, а у заказчиков есть возможность получить готовый к внутренней отделке дом через пару недель после принятия решения о покупке. По этой причине предлагают только одну планировку и готовый вариант внешней отделки — подробнее о доме МОНЕ 60.
Проект МОНЕ 75 — наоборот, предполагает вариативность: есть разные варианты отделки фасадов (штукатурка, деревянная облицовка, фасадные панели плюс любые комбинации) и возможность выбора планировок — подробнее о проекте МОНЕ 75.




