Новый строительный конструктор СМАРТ от ДОМ ТЕХНОНИКОЛЬ
Строго говоря, это дом-конструктор для взрослых строителей и не предназначен для новичков в дачно-строительном деле. Для последних в линейке ТЕХНОНИКОЛЬ есть беседки, хозблоки и садовые дома из мини-бруса, которые можно собрать за выходные — об этом.
Скорее это предложение для небольших строительных компаний, специализирующихся на строительстве «каркасников» в дачных поселках. Впрочем, самозастройщикам такой дом-конструктор тоже подойдет.
Более того, такой конструктор и приложенный к нему проект дома — могут стать настоящим учебником по каркасному домостроению, позволяющим не наделать типичных для начинающих ошибок.
О проекте СМАРТ 60
Проект объективно качественный, профессионально сделан и, на мой взгляд, может претендовать на роль проекта-бестселлера в номинации «дома ИЖС до 60 кв. м». На выходе — должна получиться не просто дача с «батутящими» перекрытиями, а полноценный дом ИЖС — с высокими потолками и утеплением, соответствующим СП 50.13330.2024 Тепловая защита зданий.
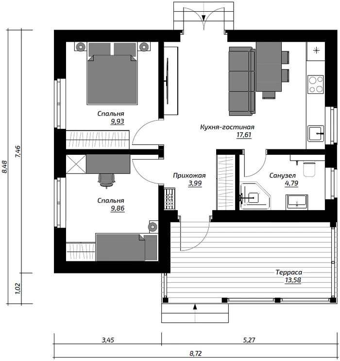
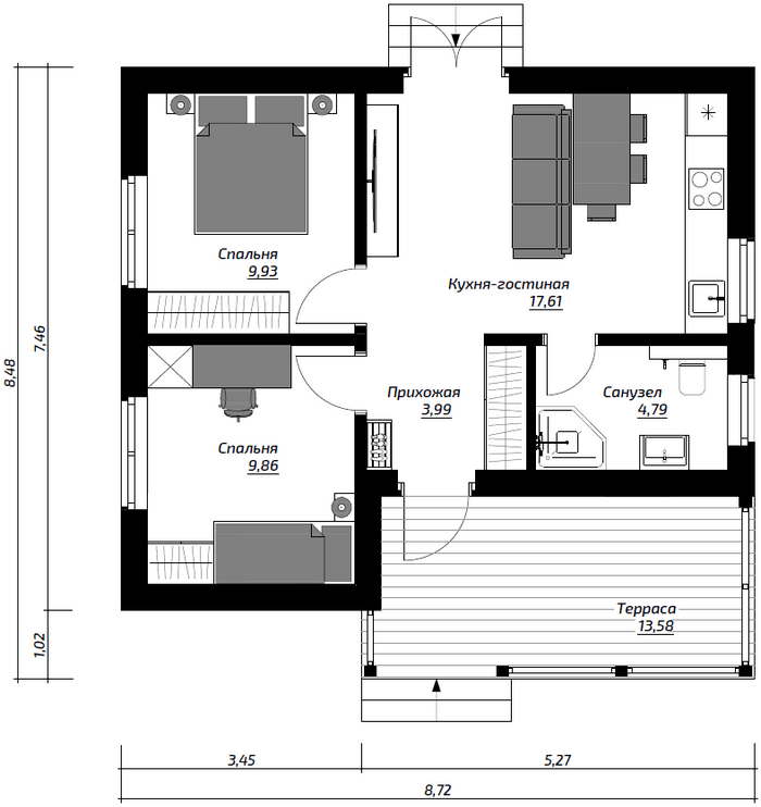
Снаружи дом лаконичен, прост (в том числе для монтажников), но интересен — благодаря практичной вертикальной обшивке имитацией бруса, высоким окнам и массивным свесам кровли.
Терраса 13,6 кв. м полностью закрыта свесом кровли.
Планировка — также максимально продуманная и эргономичная: видно, что проектировщики позаботились даже о мелочах. Например, о таких, как расположение спален и входов в дом.
Да, у этого дома предусмотрены два входа: не слишком частое решение для проектов такого формата. Получается, что у обитателя любой из двух спален он свой. Можно выходить на улицу, не потревожив тех, кто за стенкой — очень удобная компоновка для семейного дома, в котором вынуждены сосуществовать «совы» и «жаворонки».
В доме две спальни — каждая около 10 кв. м, кухня-гостиная 17,6 кв. м. Видно, что даже мебель на плане расставляли профи: гардеробные шкафы в спальнях стоят так, чтобы обеспечивать максимальную звукоизоляцию.
Что такое дом по технологии «прекат»
Серия каркасных домов СМАРТ появилась в каталоге проектов ДОМ ТЕХНОНИКОЛЬ сравнительно недавно — об этом. Особенность серии в том, что это так называемые «прекаты» (Pre-Cut — предварительно нарезанный)* — домокомплекты-конструкторы, состоящие из набора напиленных на заводе деревянных деталей силового каркаса дома (стойки, обвязки, балки перекрытий, элементы стропильной системы и т.п.).
В расширенные комплектации может входить может входить полный комплект изоляционных материалов (паро- и гидроизоляционные, ветрозащитные пленки, теплоизоляция, скотчи и т.д.), а также все детали фасадной отделки, включающие в себя напиленные в размер имитацию бруса, террасную доску и все открытые деревянные конструкции мебельного качества — ступени, столбы, ограждения террас и балконов.
В таком виде домокомплект-конструктор от ТЕХНОНИКОЛЬ поступает к заказчику. Подробнее об этом.
Для частного заказчика дом на основе прекат-домокомплекта серии СМАРТ — это гарантия профессионального качества строительства на всех этапах: от проектирования до отделки. При этом производитель настоятельно рекомендует пользоваться услугами сертифицированных подрядчиков, прошедших подготовку в учебных центрах ТЕХНОНИКОЛЬ.
Представители ДОМ ТЕХНОНИКОЛЬ обещают регулярно обновлять каталог, добавляя в него новые проекты серии СМАРТ и готовы работать над проектами совместно с партнерами-подрядчиками. Посмотрите все дома серии СМАРТ в разделе каталога каркасных домов по технологии “ПРЕКАТ” от ДОМ ТЕХНОНИКОЛЬ.


