Ненавязчивая асимметрия ПИКАССО
ПИКАССО — проект, облик которого архитекторы позаимствовали у коттеджей премиального сегмента.
Но сделав такой дом более демократичным и практичным, они, что называется, попали в точку.
Сегодня это один из самых популярных одноэтажных быстровозводимых панельно-каркасных домов в серии СТАНДАРТ для коттеджных поселков.
Для проекта есть две версии планировок, а с учетом зеркальных вариантов — четыре. Есть также проект ПИКАССО МИНИ — также в базовом и зеркальном варианте.
Плюс к этому для всех проектов — два варианта утепления для разных климатических зон и несколько решений фасадной отделки.
Дом ПИКАССО — собственный проект ООО «ТЕХНОНИКОЛЬ — Строительные системы».
Общая площадь дома — 116 кв. м. В версии ПИКАССО МИНИ — 103 кв. м.
Оба варианта — имеют две версии: дачный дом с сауной и такой, где вместо сауны — просторное техническое помещение. Второй вариант ориентирован на постоянное проживание.
Домокомплекты производят на заводах ООО «Малоэтажные комфортные дома» (МКД) в Ленинградской и Нижегородской областях.
Первое, что бросается в глаза — асимметричная разноуровневая крыша. Терема из клееного бруса с такими крышами начали появляться лет десять-двенадцать назад — преимущественно в дорогих коттеджных поселках в окружении лесных и озерных ландшафтов. Но и сегодня у таких домов есть целая армия состоятельных поклонников.
Правда, дом со стенами из бруса — почти всегда дача. Или резиденция для тех, кто не боится неважной звукоизоляции, продуваемых углов и не склонен мелочиться, считая расходы на отопление.
В панельно-каркасной версии такой дом без напрягов вписывается и в российские, и в более строгие североевропейские нормативы по тепловой защите и энергосбережению. Для домовладельца-прагматика это важно не меньше, чем экстерьер и интерьеры.
Посмотрите видео о проектировании и строительстве дома ПИКАССО МИНИ в Клинском районе Московской области. Подрядчик: ТЕХНОВИЛЛА
Дом ПИКАССО снаружи
В аннотации проекта сказано, что ПИКАССО — проект в скандинавском стиле. Отметим, что от Пикассо здесь ненавязчивая асимметрия, делающая дом узнаваемым. А скандинавский стиль — в современной российской интерпретации: то есть, в симбиозе с нашими дачными традициями — с деревянными балками в интерьере и экстерьере, высокой двусветной гостиной и террасой — продолжением гостиной под массивным свесом крыши.
Терраса — непременный атрибут современной дачи. А такие свесы — это практично, надежно и уютно: они защищают и от осадков, и от палящего полуденного солнца, когда оно в зените. В то же время, они не мешают нежному вечернему солнечному свету литься прямо в окна и наполнять интерьер уютом.
Вдобавок разноуровневая крыша на склонном к усадке доме из бруса, — всегда сложная с инженерной точки зрения конструкция. Утеплять такую крышу обычно приходится снизу. Это тяжелая работа для монтажников и для тех, кто должен принимать работу и следить, чтобы они ничего не забыли.
В то же время в панельно-каркасном, варианте, когда крыши собирают из готовых панелей, все намного проще и надежнее. Такая крыша почти не удорожает проект, но в несколько раз ускоряет монтаж, позволяя добиваться аккуратного утепления без пропусков и тонких мест в стыках и сопряжениях плоскостей.
Узнайте больше: Как кровельные панели ТЕХНОНИКОЛЬ ускоряют строительство
Давайте теперь посмотрим, какую отделку предлагают. Для “большого” ПИКАССО есть три базовых варианта.
Отделка широким имитатором бруса создает ощущение, что перед вами рубленый дом. Правда, в отличие от дома из бруса, он теплый и не подвержен усадке.
Контрастные сочетания светлой и темной штукатурки неброских натуральных расцветок — оптимальный вариант для массивов ИЖС, ориентированных на постоянное проживание.
Комбинированный и на наш взгляд самый практичный вариант: штукатурка плюс вставки из тонированной древесины.
С точки зрения сочетаний цветов и фактур, все три варианта — не догма. Выбор цветовых схем отделки остается за заказчиком.
Версия ПИКАССО МИНИ
Собственно говоря, такой дом не то чтобы “мини” — всего на 13 “квадратов” меньше большого ПИКАССО, прежде всего, за счет гостиной: была огромная, теперь просто большая. Нужен очень наметанный глаз, чтобы отличить один дом от другого.
Как рассказали проектировщики, проект ПИКАССО МИНИ появился, потому что заказчице очень понравился проект, но на участке не хватало около полуметра ширины, чтобы без проблем разместить на нем дом с такими габаритами.
Поэтому ПИКАССО не просто чуть уменьшили, а сделали проект с другой планировкой, которая также оказалась очень удачной и функциональной.
Варианты отделки ПИКАССО МИНИ:
Недорого, практично и долговечно: фасадная плитка HAUBERK под кирпич. Банный комплекс на базе проекта ПИКАССО МИНИ в парк-отеле “Лесной” (Подмосковье).
Подрядчик: ТЕХНОКАРКАС
Экологично: имитация бруса. Частный дом по проекту ПИКАССО МИНИ в Московской области.
Подрядчик: ТЕХНОВИЛЛА
Тот же дом: благодаря отделке имитатором бруса изнутри и снаружи, дом выглядит как полностью деревянный.
Дом ПИКАССО внутри
Самый выигрышный вариант для интерьеров — имитатор бруса и открытые балки. Потолки в спальнях можно “понизить”, сделав подвесные и организовав антресоли для хранения. В загородном доме они никогда не будут лишними. Дом ПИКАССО МИНИ в Клинском районе Московской области. Подрядчик: ТЕХНОВИЛЛА
Теперь разберемся с планировками. Как уже сказали, здесь шесть вариантов: два для большого дома, один для мини плюс зеркальные.
Выбор между стандартной или зеркальной планировками обычно зависит от того, с какой стороны заезд на участок. Наличие таких вариантов дает возможность выгодно расположить видовую террасу с панорамным остеклением и оптимально сориентировать дом по сторонам света.
Дом ПИКАССО
габариты с террасой — 12,7Х10,2 м
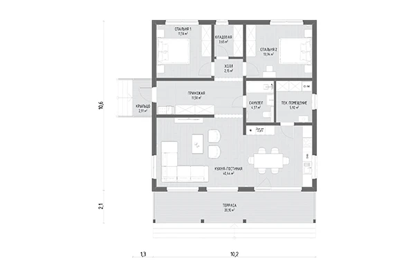
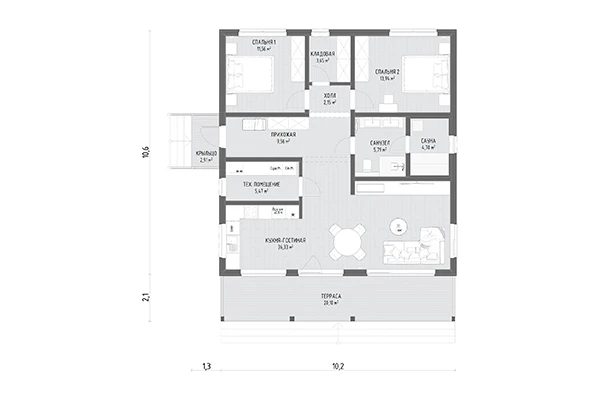
В большом ПИКАССО пространство кухни-гостиной просто огромное — 40,5 кв. м, две спальни, 11,5 и 14 кв. м.
Также есть большая прихожая, техническое помещение, кладовая и санузел.
Есть альтернативный вариант планировки:
В этой версии планировки есть сауна. При этом техническое помещение “переехало” к входу, забрав часть площадей гостиной и прихожей.
ДОМ ПИКАССО МИНИ
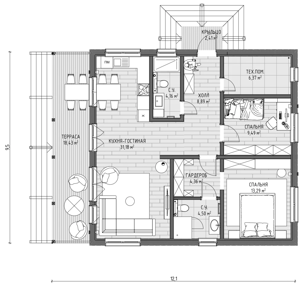
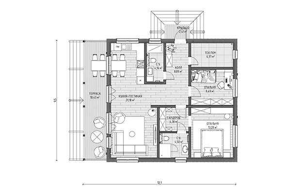
габариты с террасой — 12,1Х9,5 м
В версии ПИКАССО МИНИ кухню-гостиную “сократили” до 31,2 кв. м, . и, что примечательно — без ущерба для функциональности: потому что терраса со сдвижными портальными дверями в хорошую погоду становится продолжением гостиной.
Одна из спален теперь 9,5 кв. м. Вторую — превратили в мастер-спальню с индивидуальным санузлом.
Оба санузла (да, их здесь два) — просторные: можно разместить не только душ, но и ванну.
Прихожая стала чуть компактнее, зато при входе — техническое помещение 6,5 кв. м, которое можно использовать как кладовую или котельную, если предусмотрено газовое отопление.
В дачном варианте, или при электроотоплении от технического помещения можно отказаться и увеличить площадь примыкающей жилой комнаты.
Кроме основного назначения, такой проект может быть банным комплексом (как в парк-отеле “Лесной”), банным домиком с одной жилой комнатой или гостевым домом.
Как строят ПИКАССО
Готовые панели поступают с заводов на трех еврофурах. Для сборки требуется автокран и бригада из четырех человек. Сборка домокомплекта на готовом фундаменте возможна в любое время года и занимает считанные дни.
Монтаж домокомплекта ПИКАССО в Ивановской области. Подрядчик: «СЗ «Гермес-Эстейт»
Представитель компании подрядчика рассказал и показал, как собирают домокомплект ПИКАССО МИНИ. Подрядчик: ЭКОВИЛЛА
Резюмируем
Дома по проектам ПИКАССО или ПИКАССО МИНИ похожи на фешенебельные дачи из клееного бруса.
В то же время, это более демократичная по цене, более функциональная и, что самое главное, более теплая альтернатива стеновому брусу. Потому что древесина, даже клееная и доведенная до мебельного качества, всегда “дышит” — то есть, дает усадку. Причем подвижки хоть и незначительны, но достаточно миллиметровых щелей, чтобы такой дом перестал держать тепло.
Несмотря на экологичный вид, дома по проектам ПИКАССО или ПИКАССО МИНИ строят не только в дачных поселках. В качестве дома для постоянного проживания это тоже хороший вариант.
Во-первых, ПИКАССО — это очень теплые дома. В зависимости от климатического региона, возможны два варианта утепления ПИКАССО: стандарт с базовой толщиной теплоизоляции 189 мм и комфорт — 236 мм.
Во-вторых, по планировке такой дом не похож на квартиру. Потому что здесь пятиметровые потолки с открытыми балками в гостиной и терраса, делающая участок продолжением дома. Террасы — полностью под крышей: зимой не придется выходить в сугроб.
В-третьих, во всех версиях дома ПИКАССО предусмотрены кладовые и технические помещения. Они необходимы, вне зависимости от того, идет ли речь о даче или доме для постоянного проживания.
ПИКАССО — это одноэтажные дома. Здесь нет лестниц на второй этаж, съедающих пространство и ограничивающих выбор планировок. Для повседневной эксплуатации такой дом намного удобнее двухэтажного.
Но самое главное, что ПИКАССО — это проект, в котором все конструктивные решения, логистика и нюансы сборки на месте уже отточены до мелочей. Все деревянные конструкции сделаны в заводских условиях, с миллиметровой точностью, и не потребуют подгонки на месте.
Поэтому ни архитекторы, ни подрядчики, ни монтажники на площадке не будут экспериментировать за счет заказчиков, а непредвиденных нестыковок при монтаже не будет.

