Каркасные дома по технологии «прекат»: от евротрёшки до усадьбы
В каталоге ДОМ ТЕХНОНИКОЛЬ появилась новая серия проектов — СМАРТ. В отличие от префаб-серий СКАНДИК, СТАНДАРТ, УЮТНЫЙ — это не панельно-каркасные дома, а каркасные, по технологии прекат (Pre-Cut — предварительно нарезанный)* строительный метод, при которой все элементы деревянного каркаса будущего дома, прежде чем поступить на стройплощадку, нарезают на высокоточных станках на заводе.
«Прекат» — это домокомплект-конструктор, в составе которого — архитектурный проект, рабочие чертежи по монтажу и набор напиленных на заводе деталей. Базовый комплект включает в себя все необходимое для сборки силового каркаса: стойки, обвязки, балки перекрытий, элементы стропильной системы и т.п.
В расширенные комплектации может входить полный комплект изоляционных материалов (паро- и гидроизоляционные, ветрозащитные пленки, теплоизоляция, скотчи и т.д.), а также все детали фасадной отделки, включающие в себя напиленные в размер имитацию бруса, террасную доску и все открытые деревянные конструкции мебельного качества — ступени, столбы, ограждения террас и балконов.
Но по факту потенциальный заказчик может воспользоваться проектом и его конструктивной частью как основой для составления сметы и укомплектовать объект любыми материалами для отделки — например, вместо облицовочной доски приобрести более демократичный виниловый сайдинг, или фасадные панели. То же и с кровельными материалами: покрытие можно выбрать в каталоге ТЕХНОНИКОЛЬ, либо у других поставщиков.
То есть, домокомплект-конструктор на базе технологии «прекат» в версии ДОМ ТЕХНОНИКОЛЬ дает заказчику возможность оптимизировать бюджет, подбирая оптимальные с точки зрения цен и качества материалы.
К тому же, у того, кто выбрал такой «способ приготовления» дома, есть возможность сэкономить на отделке. У заводского каркаса все «вертикали», «горизонтали» и плоскости на месте — это облегчает отделочные работы: ничего подгонять не нужно. Можно делать их своими силами — в тепле, под крышей и растягивая затраты по времени. Вдобавок, после стройки по технологии «прекат» не нужно выметать горы опилок, утилизировать обрезки и строительный мусор — это тоже снижение трудозатрат.
Еще одна особенность каркасных «прекатов» — широкие возможности корректировки планировок под требования заказчика. При панельно-каркасном строительстве, когда все внешние и внутренние стены поступают на стройплощадку уже готовыми — с дверными и оконными проемами, подрозетниками и гофрами для прокладки коммуникаций, у «преката» — внутренние перегородки — это только «скелеты» из стоек каркаса.
Поэтому дверные проемы и часть внутренних стен-перегородок можно смещать, добавлять, или наоборот — отказываться от них. Например, сделать большую комнату с двумя окнами, но заложить в проекте возможность, когда семья подрастет, разбить ее перегородкой на две. Или в первый год закрыть теплый контур, сделать внешнюю отделку и обустроить только часть комнат, а другую отложить «на потом».
Но получив возможность растягивать затраты и рационально распределять ресурсы, будущий домовладелец сможет «отыграться» и не экономить на площадях. Именно поэтому в серии СМАРТ — преимущественно большие дома. Самый компактный — 60 кв. м, а три других — от 124 до 169 кв. м.
Архитектурные решения — близкие к классической скандинавской стилистике: один этаж, симметричные скатные крыши, все террасы и крылечки — тоже под крышами. С точки зрения каркасного конструктива — все консервативно, предсказуемо и тщательно просчитано.
При этом для строительства каркаса используется не просто сухая калиброванная доска, а сращенная: из отборных плотных фрагментов — без трещин, выпадающих сучков и прочих дефектов. А все детали — балки и стойки — напилены в размер на заводе. Как следствие — идеальная подгонка всех деталей и почти мебельное качество всех открытых деревянных конструкций. Такое качество недостижимо при изготовлении деталей каркаса на стройплощадке — из обычной шестиметровой доски.
И да, «смарты» — это не только дачные дома: на основе любого из предложенных домокомплектов можно сделать индивидуальный жилой дом, соответствующий требованиям СП 50.13330.2024 Тепловая защита зданий.
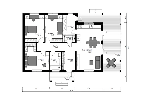
СМАРТ 60
Снаружи — компактный одноэтажный дом, самый маленький из серии СМАРТ. На самом деле, он не такой уж и маленький, и не такой простой — чуть меньше МОНЕ 60, проекта-бестселлера образца 2025 года, очень рационально спланирован.
По планировке такой дом напоминает квартиру-евротрёшку с твердой заявкой на комфорт-класс. Здесь две спальни около 10 кв. м, прихожая переходит в кухню-гостиную 17 кв. м. Но высокие наклонные потолки с отделкой «под конек» в гостиной не дадут вам забыть, что вы в доме, а не в квартире.
Ванная комната с окном: она не маленькая, но и не огромная и, что очень практично, — не граничит со спальнями — никто не будет принимать душ у вас прямо за стенкой.
И да, во всех проектах серии СМАРТ, включая самый компактный «шестидесятый», предусмотрены два входа в дом с разных сторон. Очень удобная компоновка для семейного дома, в котором живут и «совы», и «жаворонки»: те, кто просыпается на заре, и обитатели, ведущие активную жизнь поздним вечером, — не будут мешать друг другу.
Предложенный вариант отделки фасадов — вертикальная облицовка имитацией бруса в скандинавском стиле. Но для проектов в формате «прекат» отделка не догма: можно приобрести только силовой каркас, а отделку выбрать на любой вкус и кошелек — от демократичного винилового сайдинга до штукатурки.
Узнайте, как заказать СМАРТ 60.
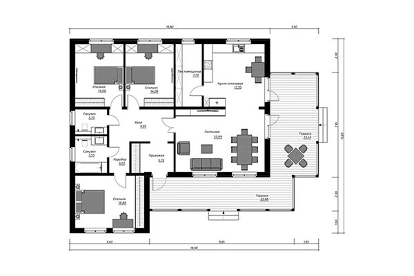
СМАРТ 124
Это дом, который вдвое больше предыдущего, он не будет тесным для семьи из четырех-пяти человек. Дом ориентирован на постоянное проживание. В предложенных проектировщиками решениях потолки — 2,9 м, нет маленьких комнат: спальни — 13,1–15,6 кв. м, кухня-гостиная — 31 кв. м, ванная — 9 «квадратов» и с большим окном.
Предусмотрено шестиметровое подсобное помещение — под котельную и узел водоподготовки.
Архитектурное решение — классический сельский дом, в котором каждая деталь традиционна и на привычном месте: оба входа в дом, с крыльца и террасы, — под симметричными двускатными козырьками. Зимой не придется выходить в сугробы.
Окна стандартные, которые в любом регионе, можно заказать у местных поставщиков, а не везти их за тридевять земель вместе с домокомплектом.
Получить дополнительную информацию о проекте СМАРТ 124
СМАРТ 144
Жилая площадь СМАРТА 144 — такая же, как у предыдущего дома: 102 кв. м. Но здесь проектировщики отыгрались, сделав гостиную со вторым светом высотой «под конек» больше 4,5 м. При этом суммарная площадь всех террас и крылец — 41,4 кв. м.
В проект заложена многовариантность входов-выходов, характерная для гостеприимного скандинавского дома, где в будние дни хозяева заходят в дом через прихожую или техническое помещение.
А в дни праздников и семейных торжеств — гостеприимно распахиваются двери гостиной, выходящие на просторную крытую террасу. Такое решение часто можно встретить в финских и шведских каталогах частных домов.
СМАРТ 169
СМАРТ 169 — настоящий усадебный дом, который можно адаптировать под любой стиль жизни и любые запросы. На рендере он кажется компактным. На самом деле, это самый большой в линейке прекатов и один из самых просторных одноэтажных домов в каталоге ДОМ ТЕХНОНИКОЛЬ.
Планировку комментировать не будем. Предложенный семейный вариант «три спальни плюс кухня-гостиная» — скорее демоверсия, показывающая внешний облик и внутренний объем дома.
В реальной жизни дом с такими габаритами — почти всегда индивидуальный проект, либо, как минимум, доработка планировочного решения под заказчика. Причем эта доработка должна учитывать и индивидуальные потребности, и особенности расположения дома на участке (ориентация по сторонам света, с какой стороны въезд на участок, виды с террас и из окон).
В реальной жизни в таком доме возможен разный состав помещений и разные варианты организации жизненного пространства. Например, одному заказчику может понадобиться рабочий кабинет, мастерская или студия с видовой террасой. Другому — мини-офис с отдельным входом. Для представителей старшего или подрастающего поколения — автономный уголок, «мини-квартира в доме» с отдельным выходом к цветникам, грядкам, гаражам и прочим хобби-зонам.
СМАРТ 169 — это дом-конструктор для построения такой усадьбы. С одной стороны, выверенное и консервативное архитектурное решение, которое никогда не устареет, теплые стены и надежные перекрытия. С другой — широкие возможности адаптировать проект под разные категории заказчиков, которым нужен большой дом на долгие годы.
Подробнее о проекте СМАРТ 169
Кому подойдет формат СМАРТ
Запустив в производство домокомплекты-конструкторы, в ДОМ ТЕХНОНИКОЛЬ рассчитывают, прежде всего, на интерес к ним со стороны небольших строительных компаний. Для таких организаций СМАРТ — это и готовый проект, который можно предложить заказчику, и экономия ресурсов, и возможность работать без сбоев и простоев, не зависая на одном объекте на долгие месяцы. Дом по проектам СМАРТ может собрать бригада плотников или монтажников-универсалов из трех-четырех человек. При этом не нужны ни подъемные краны, ни подъезды для большегрузов непосредственно к площадке — все детали домокомплекта-конструктора имеют небольшой вес, и их можно переносить вручную.
В таком виде домокомплект-конструктор от ТЕХНОНИКОЛЬ поступает на стройплощадку. Подробнее об этом.
Также представители ДОМ ТЕХНОНИКОЛЬ обещают регулярно обновлять каталог, добавляя в него новые проекты серии СМАРТ и готовы работать над проектами совместно с партнерами-подрядчиками.
Для частного заказчика дом на основе прекат-домокомплекта серии СМАРТ — это гарантия профессионального качества строительства на всех этапах: от проектирования до отделки. При этом производитель настоятельно рекомендует пользоваться услугами сертифицированных подрядчиков, прошедших подготовку в учебных центрах ТЕХНОНИКОЛЬ.
Посмотрите все дома серии СМАРТ в разделе каталога каркасных домов по технологии “ПРЕКАТ” от ДОМ ТЕХНОНИКОЛЬ. Каталог проектов мы регулярно обновляем и дополняем.










