Как выглядит готовый дом по проекту МОНЕ 60
Выставочный дом доступен для посетителей постоянно действующей выставки в Подмосковье с середины лета 2025 года. Это собственный проект архитекторов ДОМ ТЕХНОНИКОЛЬ.
Как строят быстрые дома МОНЕ 60
Дом по проекту МОНЕ 60 в ТЕХНОНИКОЛЬ называют «самым быстрым». Домокомплекты производят на заводах в Ленинградской и Нижегородской областях, комплектуют, упаковывают и отправляют на склады.
Заказчику не нужно ждать, пока дом спроектируют и построят. Готовые к отгрузке домокомплекты всегда есть на складе. Для перевозки к месту монтажа нужны две еврофуры стандартного объема 120 куб. м.
На монтаж автокраном, прямо с колес, на готовом фундаменте отводится три-четыре дня — и можно приступать к внутренней отделке, в тепле и под крышей. То есть, благодаря проекту МОНЕ 60, у заказчика есть шанс получить дом через одну-две недели после принятия решения о покупке.
Причем речь не просто о коробке, а о доме с завершенной фасадной отделкой и кровлей, готовый к внутренним работам: то есть, со стенами под чистовую отделку, подрозетниками и закладными для коммуникаций. И все это — без гор строительного мусора на площадке.
Монтаж дома МОНЕ 60 на выставке «Малоэтажная страна» в Алтуфьево. Слева — начало. Справа — почти финал. Итого два-три дня на сборку автокраном.
Но у таких темпов строительства есть обратная сторона. Дом МОНЕ 60 — это полностью готовое архитектурное и конструктивное решение, которое нельзя изменить. Именно поэтому архитекторы, дизайнеры, проектировщики и технологи постарались создать «идеальный» проект, в котором заказчику ничего не захотелось бы переделывать. Они долго оттачивали каждую деталь, чтобы представить его на выставке.
Давайте посмотрим, что получилось.
Дом МОНЕ 60 снаружи
МОНЕ 60 — это шале с симметричной двускатной крышей, большой площадью остекления и благородной деревянной отделкой. Вход в дом — с небольшого крыльца под крышей. Кроме него — все помещения в теплом контуре.
Имитацию бруса покрыли защитным маслом светло-коричневого цвета и смонтировали вертикально. Свесы кровли здесь тоже подшиты деревом. Смотрится свежо и современно, а сделано аккуратно.
Вдобавок такая отделка долговечна и практична: капли косых дождей, попадающие на стены, покрытые пропиткой, просто съезжают вниз и не попадают в щели между досками.
Второй цвет экстерьера — глубокий серый. Оконные рамы, отливы, цокольные панели, гибкая черепица и водосточная система — все выполнено в оттенках серого. Получился лаконичный экстерьер в спокойных природных цветах. Фасад подсвечивают двунаправленные светильники.
Дом МОНЕ 60 внутри
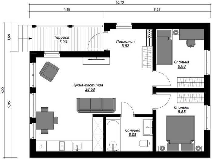
МОНЕ 60 — одноэтажный дом с объединенным пространством кухни-гостиной-прихожей и двумя спальнями.
- Размеры дома — 9,6 х 7,3 м
- Общая площадь — 60 кв. м
- Состав помещений: кухня-гостиная, две жилые комнаты, санузел
Наклонные потолки и полуоткрытые балки — тоже элементы в стиле шале. Такие детали в интерьере будут напоминать о том, что вы в доме, а не в квартире.
Еще одно решение — окна с подоконниками на высоте 20 см от пола. Они так же эффектно смотрятся, но более практичны и безопасны, чем «окна в пол» — меньше вероятность промерзания, повреждения нижней части створки и выхода на улицу через распахнутое окно.
Такие окна хороши, когда за ними открытые террасы: зимой их не будет заметать снегом. Кстати о террасах: в проекте МОНЕ 60 они не предусмотрены и за них не нужно переплачивать. Но компоновка дома дает возможность в будущем хоть весь дом окружить открытыми террасами — это актуально для владельцев участков с выраженными перепадами высот.
Пожалуй единственное излишество, которое позволили проектировщики — высокий сводчатый потолок с полуоткрытой коньковой балкой и обшивкой под конек кровли.
МОНЕ 60 — дом с высокими потолками. Высота стены в самой низкой точке, под скатом, около 2,6 м, под коньковой балкой — 3,4 м.
В панельно-каркасном доме, монтаж такой крыши из готовых панелей позволяет добиться аккуратного утепления без пропусков и тонких мест в стыках и сопряжениях плоскостей.
В то же время, для каркасного дома, который строится традиционным способом, утепление такой крыши, когда теплоизоляцию монтируют на лесах, над головой, укладывая ее враспор между балками, — непростая и небыстрая работа с большой вероятностью ошибок, пропусков и недоделок.
Узнайте больше: Как кровельные панели ТЕХНОНИКОЛЬ ускоряют строительство
Несмотря на то, что выставочный дом построили быстро, его внутренняя отделка и меблировка до кондиции «под тапочки» заняла около трех месяцев. В реальной жизни этот процесс едва ли происходит быстрее. И здесь вопрос не в технологиях, а в том, что они намного опережают скорость принятия решений. А таковых на финальной стадии любому будущему новоселу приходится принимать множество: от обоев, гармонирующих с плинтусами и дверными ручками до пледов на диванах, чашек в буфете и крючков для полотенец в ванной.
Выставочный дом — не исключение. Кровати, столы, столик, стулья, стеллажи, тумбы, диван, кухонную мебель и прочие предметы интерьера подбирал профессиональный дизайнер, а покупали — в обычных мебельных магазинах и на маркетплейсах. И вот что в конечном счете получилось.
Благодаря высоким потолкам, большим окнам, светлым потолкам и стенам, в доме много света и воздуха. Для создания уюта предусмотрены разные сценарии освещения, которые поддерживают трековые системы, светодиодная подсветка, люстры, бра, настенные светильники и подвесы.
Предусмотрены разные сценарии освещения — от праздничной подсветки до расслабляющего вечернего света и будничного варианта «за окном хмурое утро».
При оформлении стен в помещениях использовали классический дизайнерский прием — двухцветную, близкую по тональности окраску. Горизонтальная граница проходит по верхней части дверных проемов. Такие решения хорошо работают в помещениях с высокими потолками, делая пространство более уютным, а интерьер завершенным.
В каждой зоне дома есть сделанные под заказ системы хранения, достаточные для размещения одежды, обуви, домашнего текстиля, посуды, продуктов, игрушек, книг и инженерного оборудования.
Да, у загородного домовладельца имущества обычно намного больше, чем у обитателя квартиры. Ему приходится где-то держать велосипеды, садовые тачки и лопаты, газонокосилки. Но для всего остального на участке обычно строят хозблоки.
Об этом: где заказать и как построить хозблок из мини-бруса
Словом, типовых интерьеров, в отличие от типовых проектов, здесь нет. Пожалуй, единственное готовое интерьерное решение, которое может предложить своим заказчикам ТЕХНОНИКОЛЬ — это санитарно-технические модули (СТМ), которые производят на заводе г. Бугры Ленинградской области.
Такой модуль представляет собой готовую ванную комнату, в которой есть все — от продуманного освещения до зеркала и тех самых вешалок для полотенец. Такой модуль можно подключить к трубам, электропроводке — и в тот же день можно принимать ванну. В выставочном доме, как раз такая модульная ванная комната.
Кому подойдет МОНЕ 60
Дом МОНЕ 60 — это универсальный вариант: он будет выигрышно смотреться и в коттеджном поселке, и на холмистом сельском ландшафте, и в окружении лесного массива.
Если участок просторный, видовой и с перепадом высот — перед гостиной, вместо крылечка в несколько ступенек можно пристроить террасу на сваях, — причем любой конфигурации и размера.
Но в данном случае терраса будет не продолжением дома, а продолжением участка — то есть, она не будет иметь общий с домом фундамент и цоколь, а значит, — не удорожает проект.
Такой дом может быть и дачей, и загородной квартирой, и домом для постоянного проживания, например, для семейной пары любого возраста или семьи с ребенком.
МОНЕ 60 — выверенный проект, в который вложили не только технологии и заводское качество, но также душу. Это еще теплый, радушный дом по привлекательной цене. Он компактный, но не тесный и рассчитан на многолетнюю беспроблемную эксплуатацию.
Где посмотреть: Московская область, п. Вешки, выставка домов Малоэтажная Страна
Узнать больше: Рассчитать стоимость и заказать строительство дома по проекту МОНЕ 60


